日期:2019-08-05
我司现就4#冷站消防补水箱、乙二醇定压水箱、附属管道、设备基础恢复工程进行公开竞选,有关事项公告如下:
一、 项目名称及竞选内容
(一)项目名称:4#冷站消防补水箱、乙二醇定压水箱、附属管道、设备基础恢复工程
(二)项目内容
按采购人提供的竞选文件、工程量清单等资料,承包4#冷站消防补水箱、乙二醇定压水箱、附属管道、设备基础恢复工程竞选过程中发布的竞选文件所包含的全部内容,具体以竞选文件及相关资料为准。
二、 合格投标人资格要求
(一)必须是具有独立承担民事责任能力、在中华人民共和国境内注册的法人;
(二)具备有效的工商营业执照、企业法人组织机构代码证书、税务登记证书(或三证合一);
(三)已办理合法税务登记,具有开具相应增值税专用发票资格;
(四)具备下列资质:
1、建筑装修装饰工程专业承包贰级或以上;
2、建筑机电安装专业承包叁级资质或以上。
(五)投标人近3年内(2016年1月1日至今)完成过质量合格的类似工程项目业绩(需提供合同和验收报告等相关证明材料复印件);
(六)不接受联合体报价。
三、 竞选文件公示
本项目的竞选公告及相关信息公示时间:2019年8月5日至2019年8月26日。在广东省招标投标监管网(网址:http://www.gdzbtb.gov.cn/login)、广州大学城投资经营管理有限公司网站(网址:/)上发布,并视为有效送达。本公告的修改、补充,在广州大学城投资经营管理有限公司网站发布。本竞选公告在各媒体发布的文本如有不同之处,以在广州大学城投资经营管理有限公司网站发布的文本为准。项目相关竞选文件等资料请自行在网站下载。
四、 获取竞选文件
获取竞选文件方式:在公示有效期内,工作日北京时间上午9:00至12:00,下午14:00至17:00,可自行在网站下载。
五、 递交投标文件
(一)递交投标文件地点:投标单位以密封的形式提供投标文件到:广州市番禺区大学城明志街1号信息枢纽楼9楼采购合同部,采购人接受现场递交或邮寄两种方式。
(二)投标文件递交截止时间:2019年8月26日北京时间15时30分前。投标文件信封未密封,或未在骑缝处盖章或签字,或逾期送达的采购人有权不予受理。
六、 采购人联系方式:
(一)采购单位:广州大学城投资经营管理有限公司
(二)联系地址:广州市番禺区大学城明志街1号信息枢纽楼9楼,
联系人:李工,电话:020-39302078,电子邮件:[email protected]
采购单位:广州大学城投资经营管理有限公司
2019年8月5日
广州大学城投资经营管理有限公司
4#冷站消防补水箱、乙二醇定压水箱、附属管道、设备基础恢复工程竞选文件
一、项目基本情况
(一)项目名称:4#冷站消防补水箱、乙二醇定压水箱、附属管道、设备基础恢复工程
(二)项目地点:广州大学城4#冷站
(三)采购限价:39万元
(四)项目概况
4#冷站冷却塔改造更新项目实施时,原冷却塔平台上的消防水箱及其基础、乙二醇定压水箱及其附属管道、部分消防管道均已拆下,现新冷却塔设备安装完成,需将其恢复。
二、合格投标人资格要求
(一)必须是具有独立承担民事责任能力、在中华人民共和国境内注册的法人;
(二)具备有效的工商营业执照、企业法人组织机构代码证书、税务登记证书(或三证合一);
(三)已办理合法税务登记,具有开具相应增值税专用发票资格;
(四)具备下列资质:
1、建筑装修装饰工程专业承包贰级或以上;
2、建筑机电安装专业承包叁级资质或以上。
(五)投标人近3年内(2016年1月1日至今)完成过质量合格的类似工程项目业绩(需提供合同和验收报告等相关证明材料复印件);
(六)不接受联合体报价。
三、项目的施工范围及内容
1、设备基础
消防水箱尺寸调整:原消防补水箱尺寸7(m)*8(m)*2(m)及乙二醇定压水箱共约120吨,三层楼板上人屋面梁板承载力不足,需制作网格梁设备基础,后将消防水箱放置于网格梁设备基础上。施工完成后夹层净高仅2m,故水箱尺寸调整为7(m)*1.5(m)*10(m),设置两跨网格梁,以确保水箱的蓄水量不变。
| |
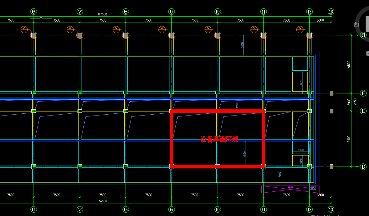
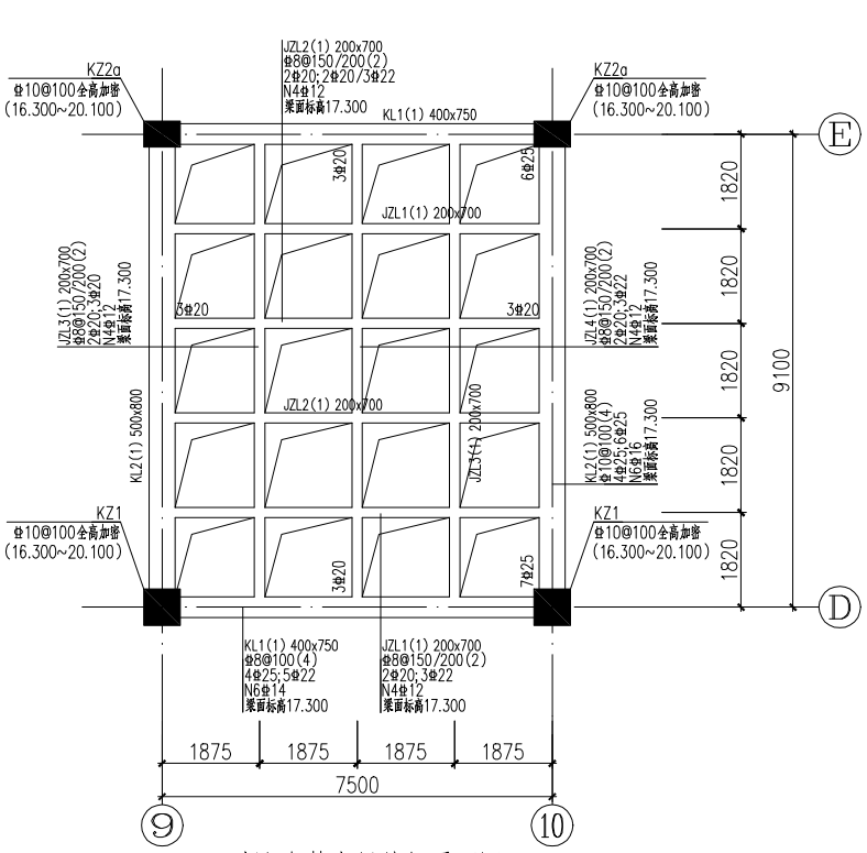
消防补水箱网格梁设备基础:位置夹层轴线9-11/E-D之间(见图一),单跨尺寸面积为:9.1m*7.5m,两跨尺寸面积9.1m*15m,9-10/E-D轴与10-11/E-D轴内结构标高(17.3m)、尺寸、配筋一致,混凝土标号均为C30,具体等见图二。现场三层楼面建筑标高约16.5m,极限承载力约4kN/㎡,其中9-10/E-D轴已经预埋钢筋(须调直+补充遗漏),10-11/E-D轴需全部植筋。

图一 设备基础网格梁平面位置

图二:9-10/E-D轴结构图

乙二醇定压水箱:保护性安装现有水箱至指定位置(见附件)。设备基础:标高20.1m,钢架采用14号、12号工字钢并做防腐处理,具体做法见大样图。
2、水箱、管道及4套消火栓箱的安装:
消防水箱、乙二醇定压水箱及管道走向平面图见附件。
消防水箱:现场组装新不锈钢消防水箱。尺寸7(m)*10(m)*1.5(m),检修口(人孔位置)留设与在两组水池之间的镂空位置(见附件)。
消防水箱技术要求
| 序号 | 项 目 | 技术要求 |
| 1 | 水箱分布基础 | 材料:10#工字钢及10#槽钢;防腐处理; |
| 2 | 水箱底板 | 材料:SUS304(0Cr18Ni9),厚度:2.5mm。 |
| 3 | 水箱侧板 | 材料:SUS304(0Cr18Ni9),最底层厚度:2.5mm,第二层厚度:2.0mm。 |
| 4 | 水箱顶板及人孔盖板 | 材料:SUS304(0Cr18Ni9),厚度:1.5mm。水箱有部分安装在水池底部,由于空间受限,处于水池底部的顶板只能使用平板,处于水池底部外面部分顶板使用平板。 |
| 5 | 水箱拉筋 | 材料:304不锈钢角钢,40mm*40mm*2mm;拉筋分布按国标要求; |
| 6 | 内、外上落扶梯 | 材料:304不锈钢方管、δ1.2mm;梯宽400mm;梯级距离300mm;外扶梯高度要求突出水箱面800mm方便上落时扶手。 |
| 7 | 人孔 | 圆形;直径800 mm;配盖,设置在镂空区域 |
| 8 | 相关管道 | 材料:304不锈钢、壁厚:4mm;水箱需配置溢流口(DN100)、出水口(DN100)、进水口(DN100)、排污口(DN100)、通气孔。溢流口、出水口、进水口、排污口预留安装法兰,开口位置由甲方现场确定,所有预留管道及法兰材质使用304不锈钢材质。 |
| 9 | 水箱及管道焊接方式 | 氩弧焊焊接 |
| 10 | 其它要求 | 水箱采用浮球补水,配铜浮球补水阀(居兴、埃美柯)、磁性浮子液位计。 |
| 注:水箱设计及制造执行国家行业标准要求:本水箱设计根据国标IB/T4735-1997《钢制焊接常压容器》、92SS177《装配式给水箱》、93S178《冲压钢板给水箱》设计制作.其卫生要求按《供水设施卫生管理规范》,所使用材料质为SUS304,符合国家GB4237-92标号标准.耐震设计以《建筑结构荷载规范》及《中国地震裂度区划图(1990)》及12S101《矩形给水箱》国家建筑标准设计图集进行设计进行设计。焊接工艺采用高频氩气保护焊和手工电弧焊,焊接工艺以及质量要求符合国家规范。 | ||

消防水箱(仅供参考)
乙二醇定压水箱:底部增加槽钢,保护性安装旧水箱。乙二醇定压水箱的具体位置见附图。

原乙二醇定压水箱
消防加压泵及管道安装:水箱至消防水泵之间沿地面走管,消防水泵至各楼层的分支管道则架空贴着水池底部的横梁走管,支吊架固定在水池

的梁上,尽量留出塔底空间。原管道为DN100厚4mm镀锌内衬管,采用卡箍连接,且部分旧管道接驳口处已变形(已变形并已影响正常使用的需采购镀锌内衬管消防管道+刷防腐漆进行替换),有2条由冷却塔层穿至主机
| |
| |
层的消防立管需要更换,并在穿楼层处进行防水处理。
原消防给水管接驳口 原消防定压罐及水泵(利旧)
| |
| |
| |



消火栓箱采用铝合金框玻璃型材质,配备消火栓、消防水带、消防软管卷盘、水枪,明装于混凝土立柱上。

| |
| |
乙二醇定压水箱附属管道:从乙二醇定压水箱出来后,沿地面经冷却塔集水井旁与原穿楼面预留管道对接。

乙二醇定压水箱附属管道:从乙二醇定压水箱出来后,沿地面经冷却塔集水井旁与原穿楼面预留管道对接。
消防控制箱恢复:将原拆下的消防水泵、配电箱、控制箱进行安装。
四、工程量及材料说明
(一)主要工程量清单
以下工程量仅作参考,投标人应根据下表及结合现场实际情况综合考虑再进行报价。
| 序号 | 项目名称 | 项目特征 | 计量单位 | 工程量 | 备注 |
| 1 | 消防水箱钢筋混凝土基础 | 1、钢筋配置见图二; 2、混凝土标号C30,梁柱节点处柱表面须凿除表皮; 3、根据现场实际情况植筋、调整已预埋钢筋,并补充遗漏钢筋。 | ㎡ | 152 | 采用水平投影面积计量 |
| 2 | 乙二醇定压水箱钢架基础 | 1、做法详见附件大样图 2、12#、14#Q235热轧普通工字钢及Q235厚6mm,钢板均做底漆两遍+中间漆两遍+面漆两遍,采用电视塔等同等质量品牌 3、均双面满焊,外观质量应满足规范要求,膨胀螺栓采用M16,孔深不小于90mm | ㎡ | 4 | 采用水平投影面积计量 |
| 3 | 消防水箱 | 1、材质为304不锈钢;水箱形式为组合式水箱;尺寸:7m*10m*1.5m(高)。 2、水箱分布基础:10#工字钢及10#槽钢,间距1m,底漆一遍+中间漆一遍+面漆一遍;水箱底板:SUS304(0Cr18Ni9),厚度2.5mm;水箱侧板:SUS304(0Cr18Ni9),最底层厚度2.5mm,第二层厚度:2.0mm;水箱顶板及人孔盖板:SUS304(0Cr18Ni9),厚度1.5mm(水箱有部分安装在水池底部,由于空间受限,处于水箱底部的顶板只能使用凹型冲压板或平板);水箱拉筋材料:304不锈钢角钢,40mm*40mm*2mm,拉筋分布按国标要求; 3、内、外上落扶梯材料304不锈钢方管、厚1.2mm,梯宽400mm,梯级距离300mm,外扶梯高度要求突出水箱面800mm方便上落时扶手;人孔圆形(检修)2个,直径800 mm,一个设置在镂空区域,一个设在对角处 4、采用氩弧焊焊接 5、水箱内采用浮球补水。 | m³ | 105 | 采用水箱体积计量 |
| 4 | 消防补水管道恢复 | 1、补水管道敷设,DN100镀锌内衬管,厚度4mm,表面红漆两遍,采用卡箍连接 2、从补水接驳口至消防水箱,含现场实际施工需增加的弯头、阀门、固定措施 | m | 36 | 采用水管长度进行计量(含阀门),原拆下的管道可修复并能满足正常使用的可直接修复后安装 |
| 5 | 消防给水管道恢复 | 1、消防水箱至消防水泵的管道沿地面铺管17m,消防水泵后至各楼层的分支管道架空贴着水池底部的横梁走115m,支吊架则固定在水池的横梁上, 2、DN100镀锌内衬管,厚度4mm,表面红漆两遍,采用卡箍连接 3、从消防水箱经过定压罐、加压泵至已有的消防立管、消防栓箱,含现场实际施工需增加的弯头、阀门、固定措施 | m | 132 | 采用水管长度进行计量(含阀门),原拆下的管道可修复并能满足正常使用的可直接修复后安装 |
| 6 | 二层机房消防管道更换 | 1、2条根冷却塔层至二楼主机层消防立管更换 2、DN100镀锌内衬管,厚度4mm,表面红漆两遍,采用卡箍连接 3、含现场实际施工需增加的弯头、阀门、固定措施 4、穿楼板套管处重新填充弹性防水材料,表面防水砂浆、沥青防水油膏处理处理; | m | 12 | 采用水管长度进行计量,原拆下的管道可修复并能满足正常使用的可直接修复后安装 |
| 7 | 消防管接驳口处立管疏通 | 1、检查接驳口处竖向消防立管是否畅通,每根立管范围从接驳口处至一层冰槽水平管(含转弯弯头) 2、如管道内存在杂物,清理后,恢复管道安装 | 条 | 4 |
|
| 8 | 消防管闸阀安装 | 1、DN100旧闸阀拆下清理,并根据现场管道走向重新安装,闸阀甲供,其余辅材乙供 | 个 | 11 |
|
| 9 | 消火栓箱及配套设施 | 1、消火栓箱采用铝合金框玻璃型材质,配备标准消火栓、标准消防水带(直径65mm,长25m)、标准消防软管卷盘(25m)、标准水枪,明装于混凝土立柱上。 2、消火栓品牌:天广、赋安、胜捷; | 套 | 4 |
|
| 10 | 泵及其控制箱恢复 | 1、原3台消防水泵及1台定压罐安装及接线。 2、原1台高质水补水泵安装及接线。 3、原消防水泵电源箱安装及接线。 4、原消防泵控制箱安装及接线。 5、水泵设备、定压罐、电源箱、控制箱等做接地保护。 | 项 | 1 |
|
| 11 | 乙二醇不锈钢水箱安装 | 1、乙二醇不锈钢定压水箱(成品)保护性整体保护性安装,水箱尺寸:2m*2m*2m。 2、分布基础采用10#工字钢或10#槽钢,底漆一遍+中间漆一遍+面漆一遍,间距1m; | 项 | 1 |
|
| 12 | 乙二醇溢流、排污管道安装 | 1、水箱溢流、排污管敷设及1个阀门安装, 2、管径DN125,材质:碳钢,厚度4mm,焊接连接,底漆一遍+中间漆一遍+面漆一遍; 3、现场设备安装位置及管道大致走向见附图。 | m | 20 |
|
| 13 | 乙二醇出水管道安装 | 1、水箱出水管敷设及1个阀门安装; 2、管径DN100,材质:碳钢,厚度4mm,焊接连接,底漆一遍+中间漆一遍+面漆一遍; 3、现场设备安装位置及管道大致走向见附图。 | m | 20 |
|
| 14 | 乙二醇进水管道安装 | 1、水箱进水管敷设及1个阀门安装; 2、管径DN100,材质:碳钢,厚度4mm,焊接连接,底漆一遍+中间漆一遍+面漆一遍; 3、现场设备安装位置及管道大致走向见附图。 | m | 20 |
|
| 15 | 防雷接地 | 1、采用40*4的镀锌扁铁将消防补水箱、乙二醇定压水箱与现有的防雷接地系统不少于两处连接(主用、备用), 2、焊接部位防腐处理,地面部分采取固定措施 3、扁钢与扁钢搭接为扁钢宽度的2倍,不少于三面施焊,如果现场条件限制,扁钢与扁钢搭接的只能双面施焊,搭接长度为扁钢宽度的3倍;圆钢与扁钢搭接为圆钢直径的6倍,双面施焊 4、接地电阻不应超过10欧姆。 | 处 | 2 |
|
| 16 | 现场卫生清理 | 1、施工余料清理 2、原不可利旧材料搬运至4#冷站旁仓库或指定位置 3、建筑垃圾清理外运 | 项 | 1 |
|
注:1、工程量清单报价时建议按上述表格人工、材料分开单列报价。
五、工程施工注意事项
1、安全第一。服从采购方的安全管理规章制度,严格执行。
2、施工时,注意成品保护,必要时采取围护、覆盖等有效措施。
3、包建筑垃圾外运,完工后场地清理。
4、充分考虑现场施工作业条件,如施工作业时间段、原材料水平+垂直运输、空间狭小、净高等。
六、项目工期及验收标准
(一)项目工期
本项目总工期为60日历天,其中土建部分25日历天,自甲方发出开工指令的次日起算。
(二)验收标准
1、质量要求:选用材料必须是环保材料及满足国家标准要求。
2、项目验收按《建筑装饰装修工程施工质量验收规范》(GB50210-2016)、《建筑工程施工质量验收统一标准》(GB50300-2013)、《建筑电气工程施工质量验收规范》(GB50303-2015)、《消防给水及消火栓系统技术规范》(GB50974-2014)要求执行。
(三)质保期及质保期内需履行的特殊义务:质保期1年。
八、工程费用及支付方式
(一)本工程采用综合单价包干,包工、包料、包工期、包质量、包安全、包安全文明施工、包验收、包调试、包结算、包资料整理、包综合治理等完成本项目的全部费用,工作全部完工后由双方进行工程量的核实和验收,以实际工程量进行结算。
(二)本项目的综合单价包含投标人按施工现场现状及施工环境根据采购人要求完成项目工作所需的全部人工、材料、工具、机具、利润、风险等费用。综合总报价应包含相关措施费用及税费等费用、合同实施过程中应预见和不可预见费用等等。
(三)合同付款按施工进度支付,具体为:
1、形象进度完成30%时,甲方收到乙方请款资料后15个工作日内支付工程款至合同暂定总价的15%。
2、形象进度完成60%时,甲方收到乙方请款资料后15个工作日内支付工程款至合同暂定总价的40%。
3、形象进度完成80%时,甲方收到乙方请款资料后15个工作日内支付工程款至合同暂定总价的60%。
4、项目全部完工并竣工验收合格并按甲方要求完成合同结算手续后,甲方收到乙方请款资料后15个工作日内支付工程款至合同结算总造价的95%。
5、质保期期满且乙方质保期义务按要求履行完毕后,甲方收到乙方请款资料后15个工作日内付清余款(不计利息)。
6、每次付款前乙方开具符合国家税务规定的等额合格的增值税专用发票给甲方。乙方晚于付款期限提供的,甲方付款期限相应顺延。
九、投标文件
根据甲方要求的投标文件格式,进行密封报价(盖章)。投标文件应包含以下内容:
(一)商务部分(提供复印件,并加盖公章)
1、 有效的企业工商营业执照、企业法人组织机构代码证书、税务登记证书(或三证合一);
2、 供应商调查表(格式见附件2)
3、 法定代表人证明书、法定代表人授权委托书原件(格式见附件3和附件4);
4、 有效的资质证书和安全生产许可证;
5、 本工程拟派项目负责人简历表(包括姓名、部门和职务、所学专业和毕业院校名称及毕业时间、主要资历、经验及承担过的类似项目,获得认证资质证书及复印件);
6、 近3年内(2016年1月1日至今)完成过质量合格的类似工程项目业绩(需提供合同和验收报告等相关证明材料复印件);
7、 投标人认为有必要的其他资质等材料复印件。
(二)技术部分(格式自定,加盖公章)
施工方案:施工单位应充分了解现场条件,并针对本项目制定切实可行的施工方案,包括但不限于:
1、总体实施方案;
2、实施进度计划和工期承诺书;
3、确保实施进度的技术和组织措施;
4、确保安全文明施工的技术和组织措施;
5、投入的机械设备;
6、投标人认为其它需要说明的文字。
(三)价格文件(加盖公章)
1、 报价一览表(格式见附件1)
2、 报价明细表:采用工程量清单计价,按本竞选文件所附工程量清单和乙供主要材料清单报价,并以此作为结算依据,包括但不限于工程量清单和乙供主要材料清单各项目单价及综合总报价,并注明未含税总价、税率和含税总价。
十、评标方法
本项目采用经评审的最低投标价法确定中标候选人。同时通过投标人资格审查(见附件5)和投标文件有效性审查(见附件6)后,各投标人按有效投标报价由低至高的顺序依次排列,排名第一为第一中标候选人。投标人实行信用评价管理,具体见附件7和附件8。
十一、勘踏现场
投标人有必要勘踏现场,充分了解清楚施工现场的环境和要求,以便投标人获取那些须投标人自己负责的有关编制投标文件和签署合同所涉及现场所有的资料。一旦中标,这种考察即被认为其结果已在中标文件中得到充分反映。考察现场的费用由投标人自己承担,如因对现场不了解导致报价的失误,由投标人承担。勘踏现场时间:2019年8月13日10:00时,集中地点:广州市番禺区大学城明志街1号信息枢纽楼一楼西门。勘踏现场联系人周工,联系电话:020-39302052。投标人未在规定时间勘踏现场的,甲方不再另行组织,由投标人自行前往勘踏。
十二、递交投标文件
(一)递交投标文件地点:投标单位以密封的形式提供投标文件到:广州市番禺区大学城明志街1号信息枢纽楼9楼采购合同部,甲方接受现场递交或邮寄两种方式。
(二)投标文件递交截止时间:2019年8月26日北京时间15时30分前。递交的投标文件或投标文件信封未密封,或未在骑缝处盖章或签字,或逾期送达的甲方有权不予受理。
十一、本竞选文件在广东省招标投标监管网(网址:http://www.gdzbtb.gov.cn/)、广州大学城投资经营管理有限公司网站(网址:/)同时发布。本竞选文件在各媒体发布的文本如有不同之处,以在广州大学城投资经营管理有限公司网站发布的文本为准。
十二、采购人地址和联系方式
采购人:广州大学城投资经营管理有限公司
联系地址:广州市番禺区大学城明志街1号信息枢纽楼9楼
联系人:李工
联系电话:020-39302078
附件:1、报价一览表
2、供应商调查表
3、法定代表人身份证明书
4、法定代表人授权委托证明书
5、投标人资格审查表
6、投标文件有效性审查表
7、公开竞选供应商信用评价
8、供应商信用指标及评价标准
采购人:广州大学城投资经营管理有限公司
2019年8月5日
附件1
报价一览表
项目名称:4#冷站消防补水箱、乙二醇定压水箱、附属管道、设备基础恢复工程
| 序号 | 项目名称 | 投标价(单位:人民币元) | |
| 1 | 投标总价 | 大写: 小写: | |
| 2 | 投标工期 |
| |
| 3 | 工程质量标准 |
| |
| 4 | 保修期限 |
| |
| 5 | 拟委派的项目 负责人 | 姓名 |
|
| 技术职称 |
| ||
注:(1)投标总价为人民币报价。
(2)投标总价是所有需采购人支付的本次项目采购的金额总数,应包括竞选文件要求的全部内容,投标人完成本项目(如果中标)所必须的所有成本费用和投标人应承担的一切税费,包括但不限于全部人工费、材料、设备、工具、机具、安装运输、规费、措施费、合理利润、管理费、税费等及清理现场的费用、合同实施过程中应预见和不可预见费用等等。
(3)若用小写表示的金额和用大写表示的金额不一致,以大写表示的金额为准。
投标人名称(盖章):
日期:2019年 月 日
附件2
| 供应商调查表 | |||||
| 项目名称:4#冷站消防补水箱、乙二醇定压水箱、附属管道、设备基础恢复工程 | |||||
| 供应商名称 |
| 法人代表 |
| ||
| 详细地址 |
| 邮 编 |
| ||
| 成立日期 |
| 营业执照号码 |
| 发证机构 |
|
| 固定电话号码 |
| 传真号码 |
| 注册资金 |
|
| 公司类型 |
| 机构性质 |
| ||
| 项目联系人 |
| 联系电话 |
| ||
| 经营范围 |
| ||||
| 序号 | 资质证书(认证项目)名称 | 发证机关 | |||
| 1 |
|
| |||
| 2 |
|
| |||
| 3 |
|
| |||
|
|
|
| |||
| 主要服务行业 |
| 主要客户 |
| ||
| 近三年类似业绩 | |||||
| 序号 | 服务单位 | 项目内容 | |||
| 1 |
|
| |||
| 2 |
|
| |||
| 3 |
|
| |||
投标单位(盖章):
日期:2019年 月 日
附件3
法定代表人身份证明书
在我单位任 职务,是我单位法定代表人,身份证号为 ,特此证明。
(单位盖章)
日期:2019年 月 日
单位通信地址:
邮政编码: 单位联系电话:
附:法定代表人身份证正反面或其他身份证明材料复印件
附件4
法定代表人授权委托证明书
兹授权(委托代理人姓名)为我方委托代理人,其权限是:办理 广州大学城投资经营管理有限公司组织的“4#冷站消防补水箱、乙二醇定压水箱、附属管道、设备基础恢复工程”的投标和合同执行,以我方的名义处理一切与之有关的事宜。
本授权书自年月日签章之日起生效,特此声明。
附:代理人性别: 年龄: 职务:
身份证号码:
(营业执照等)注册号码:
企业类型:
经营范围:
附:被授权人有效身份证正反面或其他身份证明材料复印
(单位盖章):
法定代表人(签字或盖章):
被授权人(签字或盖章):
日期: 2019年 月 日
说明:法定代表人亲自办理投标事宜的,无需提交本证明书。
附件5
投标人资格审查表
项目名称:4#冷站消防补水箱、乙二醇定压水箱、附属管道、设备基础恢复工程
| 序号 | 评审内容 | 备注 |
| 1 | 具备有效的工商营业执照、企业法人组织机构代码证书、税务登记证书(或三证合一)(复印件盖章) |
|
| 2 | 法定代表人证明书原件或法定代表人授权委托书原件 |
|
| 3 | 具有①建筑装修装饰工程专业承包贰级或以上②建筑机电安装专业承包叁级资质或以上 |
|
| 4 | 有效的安全生产许可证(复印件盖章) |
|
| 5 | 投标人近3年内(2016年1月1日至今)完成过质量合格的类似工程项目业绩(需提供合同和验收报告等相关证明材料复印件) |
|
|
| 评审结论(通过/不通过) |
|
注:
1.投标人分栏中填写“√”表示该项符合竞选文件要求,“×”表示该项不符合竞选文件要求,“○”表示无该项内容;
2.经评标委员会审核后,出现一个“×”的结论为“不通过”,即按废标处理。
3.表中全部条件满足为“通过”,同意进入下一阶段评审。
4.如对本表中某种情形的评委意见不一致时,以评标委员会过半数成员的意见作为评标委员会对该情形的认定结论。
评委签名:
日 期:2019年 月 日
附件6
投标文件有效性审查表
项目名称:4#冷站消防补水箱、乙二醇定压水箱、附属管道、设备基础恢复工程
| 序号 | 评审内容 | 投标人 |
| 1 | 投标文件未按竞选文件的规定密封、盖章和签署; |
|
| 2 | 投标文件未按竞选文件规定的格式填写,内容不全或关键字迹模糊、无法辩认; |
|
| 3 | 对同一竞选项目出现两个或以上的投标报价,且没声明哪个有效; |
|
| 4 | 投标总报价高于采购限价; |
|
| 5 | 投标总报价低于企业自身成本; |
|
| 6 | 工期不满足竞选文件要求的; |
|
| 7 | 施工方案或施工组织设计未响应竞选文件中已明确必须要作实质性响应的内容; |
|
| 8 | 投标文件附有采购人不能接受的条件; |
|
| 9 | 不符合竞选文件中规定的其他实质性要求。 |
|
|
| 评审结论(通过/不通过) |
|
注:
1.投标人分栏中填写“√”表示该项符合竞选文件要求,“×”表示该项不符合竞选文件要求,“○”表示无该项内容;
2.经评标委员会审核后,出现一个“×”的结论为“不通过”,即按废标处理。
3.表中全部条件满足为“通过”,同意进入下一阶段评审。
4.如对本表中某种情形的评委意见不一致时,以评标委员会过半数成员的意见作为评标委员会对该情形的认定结论。
评委签名:
日 期:2019年 月 日
附件7
公开竞选供应商信用评价
一.、信用评价,是指采购人对参加公开竞选采购的供应商的诚信度和履约进行鉴别和打分。
二.、供应商信用评价内容
供应商信用综合评价根据《供应商信用指标和评价标准》(附件8)进行评价。信用综合评价内容为评价年度周期内供应商的信用表现,包括良好行为和不良行为两个方面。
三、评价结果应用
(一)公开竞选采购项目可在各评标办法中应用供应商信用评价评标。
(二)采用经评审的最低价投标法评标的,在推荐中标候选人时,应对通过资格和有效性评审的投标人按照评标价进行排序,即:评标价=有效报价×(1-信用系数),信用系数计取方法见附件8,供应商第一次参与投标的,信用系数按0计算。当出现二个或二个以上投标人的评标价的取值相同时,由评委会随机抽取确定。
(三)综合评分法
1、采用综合评分法评标的,采购项目的评标总分为100分,投标供应商得分由商务评分、技术评分、价格评分组成,其中价格评分中的评标价引用信用系数计算确定,即:评标价=有效报价×(1-信用系数),联合体参与投标的,按联合体企业中最低供应商信用系数认定。
2、当出现二个或二个以上投标人的总得分相同时,由评委会随机抽取确定。
四、违约处理
(一) 排序第1位的供应商出现以下情形的,将暂停其公开竞选资格6个月:中标、确定为合同供方/承包人后,无正当理由拒绝履行合同和有关承诺的,或擅自变更、中止(终止)合同的。
(二)供应商出现下列情形之一的,甲方有权暂停其公开竞选资格1年:
1、实际提供的有关产品性能指标或技术服务能力或施工质量明显低于报价响应时承诺的;
3、一年内供应商在采购项目中累计履约评价为不合格2次的;
3、供应商提供虚假材料或与其它供应商恶意串通谋取成交的;
4、发生其他违规或违约情况,造成严重损害的;
5、其它经采购人认定的。
附件8
供应商信用指标及评价标准
| 项目 | 子项 | 评价标准 |
| 良好行为 | 供应商按约定履行合同受到奖励的 | 每发生1次,自认定之日起一年内信用系数加2%, |
| 不良行为 | 供应商提供虚假材料或与其它供应商恶意串通谋取中标、成交的; | 严重不良行为,每发生1次,自认定之日起一年内信用系数扣5% |
| 中标、确定为合同供方/承包人后,无正当理由拒绝履行合同和有关承诺的,或擅自变更、中止(终止)合同的; | ||
| 实际提供的有关产品性能指标和技术服务能力、施工质量明显低于采购响应文件或竞选时的承诺的; | ||
| 中标、成交后,将合同转包给其他供应商的; | ||
| 中标、成交后,将合同擅自分包给其他供应商的; | 一般不良行为,每发生1次,自认定之日起一年内信用系数扣2% | |
| 开标后擅自撤回采购相应文件,影响采购活动继续进行的; | 轻微不良行为,每发生1次,自认定之日起一年内信用系数扣1.25% | |
| 供应商因未按约定履行合同受到违约处罚的。 |
备注:
1. 供应商信用系数每个评价年度周期的初评按0计算。
2. 经采购人批准认定的同一供应商良好行为或不良行为,在评价年度周期内信用系数可累加计算。
供应商在一个评价年度周期内未发生任何信用系数扣罚的,在下一个评价年度周期内初评信用系数的基础上奖励加3%,连续两个评价年度周期内未发生任何信用系数扣罚的,在下一个评价年度周期内初评信用系数的基础上奖励加5%,连续三个及以上评价年度周期内未发生任何信用系数扣罚的,在下一个评价年度周期内初评信用系数的基础上奖励加8%。
4#冷站消防补水箱、乙二醇定压水箱、附属管道、设备基础恢复工程竞选公告
4#冷站消防补水箱、乙二醇定压水箱、附属管道、设备基础恢复工程竞选文件