日期:2020-10-12
我司现就枢纽楼十楼安全生产调度监控中心装修工程进行公开竞选,有关事项公告如下:
一、项目名称及竞选内容
(一)项目名称:枢纽楼十楼安全生产调度监控中心装修工程
(二)项目内容
按采购人提供的竞选文件、图纸、工程量清单等资料,承包枢纽楼十楼安全生产调度监控中心装修工程竞选过程中发布的竞选文件所包含的全部内容,具体以竞选文件及相关资料为准。
二、合格投标人资格要求
(一)必须是具有独立承担民事责任能力、在中华人民共和国境内注册的法人;
(二)具备有效的工商营业执照、企业法人组织机构代码证书、税务登记证书(或三证合一);
(三)已办理合法税务登记,具有开具相应增值税专用发票资格;
(四)具备建筑装修装饰工程专业承包贰级或以上资质;
(五)投标人近3年内(2017年1月1日至今)完成过质量合格的类似工程项目业绩(需提供合同等相关证明材料复印件);
(六)不接受联合体报价。
三、竞选文件公示
本项目的竞选公告及相关信息公示时间:2020年10月13日至2020年11月2日。在广东省招标投标监管网(网址:http://zbtb.gd.gov.cn/login)、广州大学城投资经营管理有限公司网站(网址:/)上发布,并视为有效送达。本公告的修改、补充,在广州大学城投资经营管理有限公司网站发布。本竞选公告在各媒体发布的文本如有不同之处,以在广州大学城投资经营管理有限公司网站发布的文本为准。项目相关竞选文件等资料请自行在网站下载。
四、获取竞选文件
获取竞选文件方式:在公示有效期内,工作日北京时间上午9:00至12:00,下午14:00至17:00,可自行在网站下载。
五、递交投标文件
(一)投标单位以密封的形式(一式一份,无需装订)提供投标文件到:广州市番禺区大学城明志街1号信息枢纽楼9楼采购合同部,采购人接受现场递交或邮寄两种方式。
(二)投标文件递交截止时间:2020年11月2日北京时间15时30分前。投标文件信封未密封,或未在骑缝处盖章或签字,或逾期送达的采购人有权不予受理。
六、采购人联系方式:
(一)采购单位:广州大学城投资经营管理有限公司
(二)联系地址:广州市番禺区大学城明志街1号信息枢纽楼9楼,
联系人:李工,电话:020-39302078,电子邮件:[email protected]
采购单位:广州大学城投资经营管理有限公司
2020年10月12日
广州大学城投资经营管理有限公司
枢纽楼十楼安全生产调度监控中心装修工程
竞选文件
一、项目基本情况
(一)项目名称:枢纽楼十楼安全生产调度监控中心装修工程
(二)项目地点:广州大学城
(三)采购限价:50万元(其中,绿色施工安全防护措施费为18391.67元,暂列金额为38537.21元,此两项费用为不可竞争费用,不可擅自改动,否则其投标将被否决。)
(四)项目概况
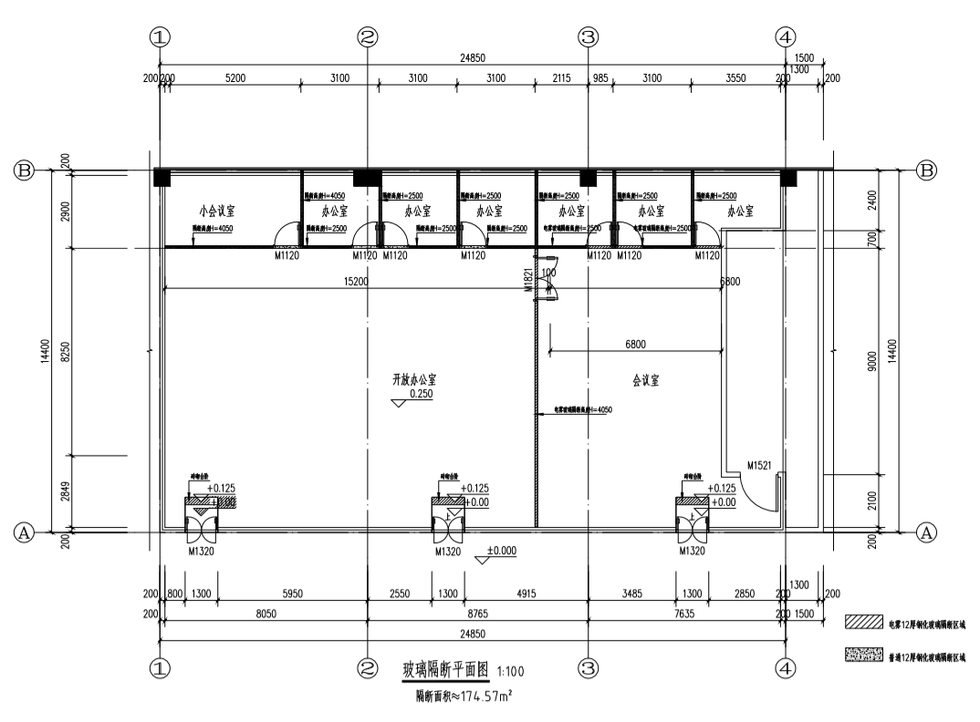
枢纽楼十楼安全生产调度监控中心装修工程工程,面积约350㎡,层高6.6m。主要内容:墙面腻子翻新,地毯翻新,大会议室安装陶瓷静电地板,安装雾化玻璃隔断、普通钢化玻璃隔断,出入口和门改造等建筑装修;强电、弱电配套设施;原消防系统利旧+局部新增感烟探测器、消防喷头+调试。
二、合格投标人资格要求
(一)必须是具有独立承担民事责任能力、在中华人民共和国境内注册的法人;
(二)具备有效的工商营业执照、企业法人组织机构代码证书、税务登记证书(或三证合一);
(三)已办理合法税务登记,具有开具相应增值税专用发票资格;
(四)具备建筑装修装饰工程专业承包贰级或以上资质;
(五)投标人近3年内(2017年1月1日至今)完成过质量合格的类似工程项目业绩(需提供合同等相关证明材料复印件);
(六)不接受联合体报价。
三、项目的施工范围及内容
(一)平面图

办公室现状

原平面图
装修平面图
(二)装修内容

1、饰面板拆除及腻子更新
①轴墙面拆除及腻子更新

监控室墙面拆除及腻子更新
2、地毯更新及局部防静电地板修复

地毯更新及局部破损防静电地板修复
3、安装雾化玻璃隔断、普通钢化玻璃隔断;
4、出入口和门改造
出入口台阶样板
出入口台阶现状(两处)

玻璃门改造(保留门框、更换门扇和地脚弹簧,修复指纹打卡功能)
5、灯具更换及局部移位

灯具全部更新

单排灯具移位
6、建筑、强电、弱电配套图纸详见附图(另册);
7、原消防系统利旧,局部新增4个烟感+4个消防喷头。
四、工程量及材料说明
(一)主要工程量清单
以下工程量仅作参考,投标人应根据下表及结合现场实际情况综合考虑再进行报价。
(详见附件9:工程量清单,另册)
注:1、品牌参考:自动空气开关品牌:西门子或施耐德;控制开关品牌:西门子或施耐德;电线电缆品牌:南洋、庆丰、珠江;插座品牌:西门子或施耐德;网络线:康普超6类,网络插座:西门子或施耐德;电话线:安普康、秋叶原,电话插座:西门子或施耐德;电度表品牌:EFET上海人民机电、上海华立毕跃或正泰;
2、投标人应充分踏勘现场;上述列项中涉及外观、观感的材料、半成品、成品均须提供样品或实物图,并征得采购方同意后实施;具体尺寸以现场实测为准;材料损耗、辅材不再另行计量;包安装,应根据设计图纸和现场实际情况优化线路及开关布置,以满足正常使用,如办公室照明灯具的开关位置、线路走向,等等;完工后需进行空气检测,空气质量必须达标。
五、工程施工注意事项
1、安全第一。服从采购方的安全管理规章制度,严格执行。
2、施工时,注意成品保护(如破坏须无偿修复),充分考虑拆除作业对现有物品的损害,并进行修复,必要时采取围护、覆盖等有效措施。
3、施工前全面防线定位,采购方同意后开始实施。
4、包建筑垃圾外运,完工后场地清理。
5、充分考虑现场施工作业条件,如施工作业时间段、原材料水平+垂直运输、空间狭小、净高等。
6、指定专人为项目安全责任人,全面负责本项目安全生产管理工作,逐级落实安全生产责任制。
7、针对现场可能发生的应急情况,制定的相关应急预案,主要预案应包括:触电事故应急处理预案、火灾事故应急处理预案、外伤急救措施等。
六、项目工期及验收标准
(一)项目工期
本项目总工期为40日历天,自项目进场手续审批通过次日起算。
(二)验收标准
项目验收按《建筑工程施工质量验收统一标准》(GB50300-2013)、《建筑装饰装修工程质量验收规范》(GB50210-2016)、《建筑电气工程施工质量验收规范》(GB50303-2015)、《建筑弱电工程施工及验收规范》(DB11883-2012)及国家和行业相关的其他质量验收标准要求执行。
(三)质保期及质保期内需履行的特殊义务:质保期1年。
七、工程费用及支付方式
(一)本工程采用综合单价包干,包工、包料、包工期、包质量、包安全、包安全文明施工、包验收、包调试、包结算、包资料整理、包综合治理等完成本项目的全部费用,工作全部完工后由双方进行工程量的核实和验收,以实际工程量进行结算。
(二)本项目的综合单价包含投标人按施工现场现状及施工环境根据采购人要求完成项目工作所需的全部人工、材料、工具、机具、利润、风险等费用。综合总报价应包含相关措施费用及税费等费用、合同实施过程中应预见和不可预见费用等等。
(三)合同付款按施工进度支付,具体为:
1、形象进度完成30%时,甲方收到乙方请款资料后15个工作日内支付工程款至合同暂定总价的15%。
2、形象进度完成60%时,甲方收到乙方请款资料后15个工作日内支付工程款至合同暂定总价的40%。
3、形象进度完成80%时,甲方收到乙方请款资料后15个工作日内支付工程款至合同暂定总价的60%。
4、项目全部完工并竣工验收合格并按甲方要求完成合同结算手续后,甲方收到乙方请款资料后15个工作日内支付工程款至合同结算总造价的95%。
5、质保期期满且乙方质保期义务按要求履行完毕后,甲方收到乙方请款资料后15个工作日内付清余款(不计利息)。
6、每次付款前乙方开具符合国家税务规定的等额合格的增值税专用发票给甲方。乙方晚于付款期限提供的,甲方付款期限相应顺延。
八、投标文件
根据甲方要求的投标文件格式,进行密封报价(盖章)。投标文件应包含以下内容:
(一)商务部分(提供复印件,并加盖公章)
1、有效的企业工商营业执照、企业法人组织机构代码证书、税务登记证书(或三证合一);
2、供应商调查表(格式见附件2)
3、法定代表人证明书、法定代表人授权委托书原件(格式见附件3和附件4);
4、有效的资质证书和安全生产许可证;
5、本工程拟派项目负责人简历表(包括姓名、部门和职务、所学专业和毕业院校名称及毕业时间、主要资历、经验及承担过的类似项目,获得认证资质证书及复印件);
6、近3年内(2017年1月1日至今)完成过质量合格的类似工程项目业绩(需提供合同等相关证明材料复印件);
7、投标人认为有必要的其他资质等材料复印件。
(二)技术部分(格式自定,加盖公章)
施工方案:施工单位应充分了解现场条件,并针对本项目制定切实可行的施工方案,包括但不限于:
1、总体实施方案;
2、实施进度计划和工期承诺书;
3、确保实施进度的技术和组织措施;
4、确保安全文明施工的技术和组织措施;
5、投入的机械设备;
6、投标人认为其它需要说明的文字。
(三)价格文件(加盖公章)
1、报价一览表及投标报价汇总表(格式见附件1),其中,绿色施工安全防护措施费为18391.67元,暂列金额为38537.21元,此两项费用为不可竞争费用,不可擅自改动,否则将被视为废标。
2、报价明细表:采用工程量清单计价,按本竞选文件所附工程量清单报价,并以此作为结算依据,包括但不限于工程量清单各项目单价及综合总报价,并注明未含税总价、税率及含税总价。
九、评标方法
本项目采用经评审的最低投标价法确定中标候选人。同时通过投标人资格审查(见附件5)和投标文件有效性审查(见附件6)后,各投标人按有效投标报价由低至高的顺序依次排列,排名第一为第一中标候选人。投标人实行信用评价管理,具体见附件7和附件8。
十、勘踏现场
投标人有必要勘踏现场,充分了解清楚施工现场的环境和要求,以便投标人获取那些须投标人自己负责的有关编制投标文件和签署合同所涉及现场所有的资料。一旦中标,这种考察即被认为其结果已在中标文件中得到充分反映。考察现场的费用由投标人自己承担,如因对现场不了解导致报价的失误,由投标人承担。勘踏现场时间:2020年10月15日10:00时,集中地点:广州市番禺区大学城明志街1号信息枢纽楼一楼西门。勘踏现场联系人周工,联系电话:020-39302052。投标人未在规定时间勘踏现场的,甲方不再另行组织,由投标人自行前往勘踏。
十一、递交投标文件
(一)投标单位以密封的形式(一式一份,无需装订)提供投标文件到:广州市番禺区大学城明志街1号信息枢纽楼9楼采购合同部,甲方接受现场递交或邮寄两种方式。
(二)投标文件递交截止时间:2020年11月2日北京时间15时30分前。递交的投标文件或投标文件信封未密封,或未在骑缝处盖章或签字,或逾期送达的甲方有权不予受理。
十二、本竞选文件在广东省招标投标监管网(网址:http://zbtb.gd.gov.cn/login)、广州大学城投资经营管理有限公司网站(网址:/)同时发布。本竞选文件在各媒体发布的文本如有不同之处,以在广州大学城投资经营管理有限公司网站发布的文本为准。
十四、采购人地址和联系方式
采购人:广州大学城投资经营管理有限公司
联系地址:广州市番禺区大学城明志街1号信息枢纽楼9楼
联系人:李工
联系电话:020-39302078
附图:图纸-枢纽楼十楼安全生产调度监控中心装修工程(另册)
附件:1、报价一览表
2、供应商调查表
3、法定代表人身份证明书
4、法定代表人授权委托证明书
5、投标人资格审查表
6、投标文件有效性审查表
7、公开竞选供应商信用评价
8、供应商信用指标及评价标准
9、工程量清单(另册)
采购人:广州大学城投资经营管理有限公司
2020年10月12日