日期:2021-12-08
我司现就原工程部办公室装修工程进行公开竞选,有关事项公告如下:
一、项目名称及竞选内容
(一)项目名称:原工程部办公室装修工程
(二)项目内容
按采购人提供的竞选文件、工程量清单等资料,承包原工程部办公室装修工程竞选过程中发布的竞选文件所包含的全部内容,具体以竞选文件及相关资料为准。
二、合格投标人资格要求
(一)必须是具有独立承担民事责任能力、在中华人民共和国境内注册的法人;
(二)具备有效的工商营业执照、企业法人组织机构代码证书、税务登记证书(或三证合一);
(三)具备建筑装修装饰工程专业承包贰级或以上资质;
(四)已办理合法税务登记,具有开具相应增值税专用发票资格;
(五)投标人近3年内(2018年1月1日至今)完成过质量合格的类似项目业绩(需提供合同等相关证明材料复印件);
(六)不接受联合体报价。
三、竞选文件公示
本项目的竞选公告及相关信息公示时间:2021年12月8日至2021年12月13日。在广州大学城投资经营管理有限公司网站(网址:/)、广东建设工程信息网(http://www.buildinfo.com.cn/)、广州国企阳光采购服务平台(http://cg.gemas.com.cn/)上发布,并视为有效送达。本公告的修改、补充,在广州大学城投资经营管理有限公司网站发布。本竞选公告在各媒体发布的文本如有不同之处,以在广州大学城投资经营管理有限公司网站发布的文本为准。项目相关竞选文件等资料请自行在网站下载。
四、获取竞选文件
获取竞选文件方式:在公示有效期内,工作日北京时间上午9:00至12:00,下午14:00至17:00,可自行在网站下载。
五、递交投标文件
(一)投标单位以密封的形式(一式一份,无需装订)提供投标文件到:广州市番禺区大学城明志街1号信息枢纽楼9楼采购合同部,采购人接受现场递交或邮寄两种方式。
(二)投标文件递交截止时间:2021年12月13日北京时间15时30分前。投标文件信封未密封,或未在骑缝处盖章或签字,或逾期送达的采购人有权不予受理。
六、采购人联系方式:
(一)采购单位:广州大学城投资经营管理有限公司
(二)联系地址:广州市番禺区大学城明志街1号信息枢纽楼9楼,
联系人:李工,电话:020-39302078,电子邮件:[email protected]
采购单位:广州大学城投资经营管理有限公司
2021年12月8日
广州大学城投资经营管理有限公司
原工程部办公室装修工程竞选文件
一、项目基本情况
(一)项目名称:原工程部办公室装修工程
(二)项目地点:广州大学城
(三)采购限价:7万元
(四)项目概况
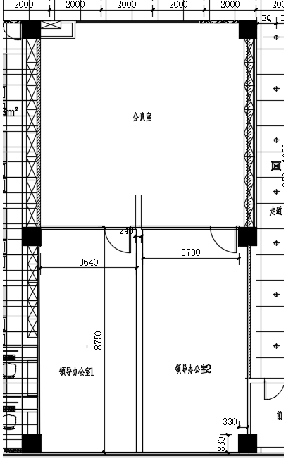
采购方原工程部办公室分隔两间领导办公室(单间面积均小于35㎡)和会议室。现将原办公室旧玻璃间隔拆除;平面布局重新调整,新增隔墙(240砖墙)、玻璃隔断、木门,灯具适当更新并调整位置,增加烟感,调整灯具和空调控制器开关位置,线路整理,吊顶修复,窗帘修复,地面砖修复等。
二、合格投标人资格要求
(一)必须是具有独立承担民事责任能力、在中华人民共和国境内注册的法人;
(二)具备有效的工商营业执照、企业法人组织机构代码证书、税务登记证书(或三证合一);
(三)具备建筑装修装饰工程专业承包贰级或以上资质;
(四)已办理合法税务登记,具有开具相应增值税专用发票资格;
(五)投标人近3年内(2018年1月1日至今)完成过质量合格的类似项目业绩(需提供合同等相关证明材料复印件);
(六)不接受联合体报价。
三、项目的工作范围及内容

室内现状照片

装修平面尺寸示意图
隔离隔断拆除 
新建隔墙示意图
玻璃隔断+门示意图(供参考)

木门及指纹识别锁(供参考)
灯具移位和新增位置

增加烟感和喷淋头

控制开关移位示意
具体内容:1、将原办公室旧间隔拆除;2、平面布局重新调整,新增轻质砖隔墙(蒸压加气砖+圈梁+构造柱),双层夹百叶玻璃隔断,木门(含指纹识别锁);3、现有灯具更新并调整位置;4、增加烟感和喷淋头;5、调整灯具和空调控制开关位置(暗敷);6、吊顶修复(隔墙砌筑引起),窗帘修复;7、墙壁修复并重新粉刷;8、线路整理,满足办公使用等。
四、工程量及材料说明
(一)主要工程量清单
以下工程量仅作参考,投标人应根据下表及结合现场实际情况综合考虑再进行报价。
| 序号 | 项目名称 | 项目特征 | 单位 | 工程量 | 备注 |
| 1 | 旧间隔拆除 | 1、保护性拆除旧间隔,并搬运至十楼甲方指定位置 | ㎡ | 15 |
|
| 2 | 圈梁 | 1、墙底、墙顶圈梁C20混凝土,宽度240mm,厚度不少于15cm,纵向螺纹钢筋数量不应少于4根,直径不应小于10mm,绑扎接头的搭接长度按受拉钢筋考虑,箍筋直径不小于8mm,间距不应大于200mm; | m³ | 1.2 | 墙底、墙顶两处圈梁 |
| 3 | 构造柱 | 1、C20混凝土构造柱,尺寸180mm*240mm,纵向钢筋可使用4Φ12,箍筋距离250mm,同时在柱顶、底位置加密 2、柱顶植筋(单柱4根),柱底膨胀螺丝(单柱4根)、钢筋L型弯曲 | m³ | 0.6 | 三个构造柱,按实结算 |
| 4 | 轻质砖隔墙 | 1、地面切槽,露出混凝土楼板 2、240墙,材料蒸压加气混凝土砌块砌筑。 3、墙底采用C20混凝土,厚度不少于20cm 4、墙体两端、中间采用钢筋混凝土构造柱 5、沿墙高按要求每隔50cm预埋φ6钢筋2根,一般每边均不小于50cm,末端应加90°弯钩。 6、墙体与幕墙之间采用隔音、防火材料填充 | m³ | 7.5 |
|
| 5 | 抹灰 | 1、墙面水泥浆拉毛 2、全挂钢丝网(防开裂) 3、表面抹灰 | ㎡ | 27 |
|
| 6 | 踢脚线 | 1、参考已有踢脚线,安装同风格踢脚线 | m | 18 |
|
| 7 | 玻璃隔断 | 1、双层钢化玻璃(单个厚8mm、漂白)夹百叶,框架1.4厚铝材,内嵌入百叶 2、顶部采用轻质石膏板、硅酸钙板与吊顶衔接,表面腻子两遍、乳胶漆三遍 3、包安装 | ㎡ | 27 |
|
| 8 | 木门 | 1. 尺寸与现有领导办公室一致,材质一致; 2. 包安装 | 套 | 2 |
|
| 9 | 含指纹识别锁 | 1、海尔品牌,HFA-18PW-U3,包安装调试 | 套 | 2 |
|
| 10 | 灯具更新并调整位置 | 1、拆除就灯具,更换新灯具,新灯具采用雷士、三雄、极光等品牌,尺寸与现有一致, | 盏 | 12 | 按实计量 |
| 11 | 烟感移位 | 1、根据已有的烟感系统,移位,含配套线管,包安装等。 | 个 | 1 | 按实计量,甲方调试 |
| 12 | 增加烟感 | 1、根据已有的烟感系统,采用现有烟感同一品牌,含配套线管,包安装等。 | 个 | 1 | 按实计量,甲方调试 |
| 13 | 喷淋头移位 | 1、参考已有喷淋头品牌、管径、接驳方式、吊杆,移位至甲方指定位置 2、满足正常使用 | 个 | 3 |
|
| 14 | 新增喷淋头 | 1、参考已有喷淋头品牌、管径、接驳方式、吊杆,移位至甲方指定位置 2、满足正常使用 | 个 | 3 |
|
| 15 | 灯具和空调开关移位 | 1、线管墙面开槽; 2、2.5珠江线缆敷设,并加PVC套管 3、开关移位 4、墙面修复 | 处 | 2 | 该项包含线缆和套管工作量 |
| 16 | 吊顶修复 | 1、铝扣板吊顶原样修复(隔墙引起) | ㎡ | 16 | 按实计量 |
| 17 | 墙壁腻子翻新 | 1、现有墙面打磨,把脱落的铲掉,刷上胶,重新刮腻子两遍, 2、表面乳胶漆三遍,立邦品牌 | m2 | 70 |
|
| 18 | 窗帘修复 | 1、窗帘架修复,满足正常使用 | 项 | 1 |
|
| 19 | 新增插座(含配套线缆) | 1、从开关箱接出 2、从吊顶内敷设管线,珠江2.5线缆,PVC套管 3、墙面开槽 4、安装插座,施耐德等同等质量品牌 5、墙面修复 | 个 | 6 | 按实计量 |
| 20 | 已有强电、弱电线路整理 | 1、充分勘察现场已有线路,保证会议室、两间办公室正常强电(照明插座开关)、弱电(光纤)正常使用。会议室两条线路(一条照明、一条插座),两间办公室两条线路 2、如涉及新增线缆,珠江2.5线缆,PVC套管 3、开关箱做好标识 | 项 | 1 |
|
| 21 | 地面瓷砖修复 | 1、采用装饰线条将已有缺口、线管开槽处装饰,美观 | 项 | 1 |
|
| 22 | 废料外运及处置费 | 1、搬运、外运车费及垃圾处理费用 | 项 | 1 |
|
| 23 | 材料垂直运输+水平运输 | 1、充分考察现场已有条件,做好成品保护措施 | 项 | 1 |
|
五、工程施工注意事项
1、安全第一。服从采购方的安全管理规章制度,严格执行。
2、施工时,注意成品保护(如破坏须无偿修复),充分考虑拆除作业对现有物品的损害,并进行修复,必要时采取围护、覆盖等有效措施。
3、施工前全面防线定位,采购方同意后开始实施。
4、包建筑垃圾外运,完工后场地清理。
5、充分考虑现场施工作业条件,如施工作业时间段、原材料水平+垂直运输、空间狭小、净高等。
6、指定专人为项目安全责任人,全面负责本项目安全生产管理工作,逐级落实安全生产责任制。
7、针对现场可能发生的应急情况,制定的相关应急预案,主要预案应包括:触电事故应急处理预案、火灾事故应急处理预案、外伤急救措施等。
六、项目工期、质量要求、验收标准及质保期
(一)项目工期
本项目总工期25日历天,自合同签订之日起计。具体开工日期以甲方通知为准。
(二)验收标准
项目验收按《建筑工程施工质量验收统一标准》(GB50300-2013)、《建筑装饰装修工程质量验收规范》(GB50210-2016)及国家和行业相关的其他质量验收标准要求执行。
(三)质保期及质保期内需履行的特殊义务:单台设备维保完毕,通过验收后,质保期1年。
七、工程费用及支付方式
(一)本工程采用综合单价包干,包工、包料、包工期、包质量、包安全、包安全文明施工、包验收、包调试、包结算、包资料整理、包综合治理等完成本项目的全部费用,工作全部完工后由双方进行工程量的核实和验收,以实际工程量进行结算。
(二)本项目的综合单价包含投标人按施工现场现状及施工环境根据采购人要求完成项目工作所需的全部人工、材料、工具、机具、利润、风险等费用。综合总报价应包含相关措施费用及税费等费用、合同实施过程中应预见和不可预见费用等等。
(三)付款方式:
1、合同签订并进场后,甲方收到乙方请款资料后15个工作日内支付暂定合同总价30%的预付款。
2、项目全部完工并竣工验收合格并按甲方要求完成合同结算手续后,甲方收到乙方请款资料后15个工作日内支付工程款至合同结算总造价的95%。
3、质保期期满且乙方质保期义务按要求履行完毕后,甲方收到乙方请款资料后15个工作日内付清余款(不计利息)。
4、每次付款前,乙方应开具符合国家税务规定的等额合格的增值税专用发票给甲方。乙方晚于付款期限提供的,甲方付款期限相应顺延。
八、投标文件
根据甲方要求的投标文件格式,进行密封报价(盖章)。投标文件应包含以下内容:
(一)商务部分(提供复印件,并加盖公章)
1、 有效的企业工商营业执照、企业法人组织机构代码证书、税务登记证书(或三证合一);
2、 供应商调查表(格式见附件2)
3、 法定代表人证明书、法定代表人授权委托书原件(格式见附件3和附件4);
4、 有效的资质证书和安全生产许可证(复印件盖章);
5、 本工程拟派项目负责人简历表(包括姓名、部门和职务、所学专业和毕业院校名称及毕业时间、主要资历、经验及承担过的类似项目,获得认证资质证书及复印件);
6、 投标人近3年内(2018年1月1日至今)完成过质量合格的类似电动阀维修项目业绩(需提供合同等相关证明材料复印件);
7、 投标人认为有必要的其他资质等材料复印件。
(二)技术部分(格式自定,加盖公章)
施工方案:施工单位应充分了解现场条件,并针对本项目制定切实可行的施工方案,包括但不限于:
1、总体实施方案;
2、实施进度计划和工期承诺书;
3、确保实施进度的技术和组织措施;
4、确保安全文明施工的技术和组织措施;
5、投入的机械设备;
6、投标人认为其它需要说明的文字。
(三)价格文件(加盖公章)
1、 报价一览表:(格式见附件1)
2、 报价明细表:采用工程量清单计价,按本竞选文件中列明的工程量清单报价,并以此作为结算依据,包括但不限于工程量清单各项目单价及综合总报价,并注明未含税总价、税率及含税总价。
九、评标方法
本项目采用综合评估法,对投标人进行价格和信用评审,其中价格评审部分占90%,供应商诚信部分占10%,投标人评审得分=价格得分+诚信分。以经评审的最低投标报价作为评标基准价,当投标价等于评标基准价时价格分得满分,投标价每高于评标基准价1%扣1分,扣至0分为止。供应商诚信分以评标当天采购人供应商管理系统查到的分值直接计取(供应商诚信分原始分为0分),投标人不在供应商管理系统内的,诚信分按0分计算。供应商诚信分在采购人官方网站上定期公布。同时通过投标人资格审查(见附件5)和投标文件有效性审查(见附件6)后,各投标人按综合评分由高至低的顺序依次排列,排名第一为第一中标候选人。采购人对中标人实行信用评价管理,中标后采购人将中标人纳入供应商管理系统,按项目对中标人的合同履约行为进行考核,具体按采购人供应商管理办法进行。
十、勘踏现场
投标人有必要勘踏现场,充分了解清楚施工现场的环境和要求,以便投标人获取那些须投标人自己负责的有关编制投标文件和签署合同所涉及现场所有的资料。一旦中标,这种考察即被认为其结果已在中标文件中得到充分反映。考察现场的费用由投标人自己承担,如因对现场不了解导致报价的失误,由投标人承担。勘踏现场时间:2021年12月9日10:00时,集中地点:广州市番禺区大学城明志街1号信息枢纽楼一楼西门。勘踏现场联系人周工,联系电话:020-39302059。投标人未在规定时间勘踏现场的,甲方不再另行组织,由投标人自行前往勘踏。
十一、递交投标文件
(一)投标单位以密封的形式(一式一份,无需装订)提供投标文件到:广州市番禺区大学城明志街1号信息枢纽楼9楼采购合同部,采购方接受现场递交或邮寄两种方式。
(二)投标文件递交截止时间:2021年12月13日北京时间15时30分前。递交的投标文件或投标文件信封未密封,或未在骑缝处盖章或签字,或逾期送达的采购方有权不予受理。
十二、本竞选文件在广州大学城投资经营管理有限公司网站(网址:/)、广东建设工程信息网(http://www.buildinfo.com.cn/)、广州国企阳光采购服务平台(http://cg.gemas.com.cn/)同时发布。本竞选文件在各媒体发布的文本如有不同之处,以在广州大学城投资经营管理有限公司网站发布的文本为准。
十三、采购人地址和联系方式
采购人:广州大学城投资经营管理有限公司
联系地址:广州市番禺区大学城明志街1号信息枢纽楼9楼
联系人:李工
联系电话:020-39302078
附件:1、报价一览表
2、供应商调查表
3、法定代表人身份证明书
4、法定代表人授权委托证明书
5、投标人资格审查表
6、投标文件有效性审查表
采购人:广州大学城投资经营管理有限公司
2021年12月8日
附件:1、原工程部办公室装修工程竞选公告