日期:2019-03-21
我司现就广州大学城区域供冷中山大学化学与材料楼接口预留工程进行公开竞选,有关事项公告如下:
一、 项目名称及竞选内容
(一)项目名称:广州大学城区域供冷中山大学化学与材料楼接口预留工程
(二)采购限价:人民币37万元。
(三)项目内容
按采购人提供的竞选文件、工程量清单和图纸等资料,承包广州大学城区域供冷中山大学化学与材料楼接口预留工程竞选过程中发布的竞选文件所包含的全部内容,具体以竞选文件及相关资料为准。
二、 合格投标人资格要求
(一)必须是具有独立承担民事责任能力、在中华人民共和国境内注册的法人,按国家法律经营;
(二)具备有效的工商营业执照、企业法人组织机构代码证书、税务登记证书(或三证合一);
(三)已办理合法税务登记,具有开具相应增值税专用发票资格;
(四)持有建设行政主管部门颁发的企业资质证书及安全生产许可证,具备以下资质之一:
1、建筑机电安装工程专业承包三级或以上资质;
2、市政公用工程施工总承包三级或以上资质;
3、建筑工程施工总承包三级或以上资质。
(五)投标人近3年内(2016年1月1日至今)完成过质量合格的类似管道施工项目施工业绩(需提供合同和验收报告等相关证明材料复印件,完成时间以竣工验收时间为准);
(六)不接受联合体报价。
三、 竞选文件公示
本项目的竞选公告及相关信息公示时间:2019年3月21日至2019年4月9日。同时在广东省招标投标监管网(网址:http://www.gdzbtb.gov.cn/login)、广州大学城投资经营管理有限公司网站(网址:/)上发布,并视为有效送达。本公告的修改、补充,在广州大学城投资经营管理有限公司网站发布。本竞选公告及其修改、补充在各媒体发布的文本如有不同之处,以在广州大学城投资经营管理有限公司网站发布的文本为准。项目相关竞选文件等资料请自行在网站下载(如有)。
四、 获取竞选文件
获取竞选文件方式:在公示有效期内,工作日(北京时间,下同)上午9:00至12:00,下午14:00至17:00,可联系采购人获取该项目竞选文件或自行在网站下载(如有)。
五、 递交投标文件
(一)投标文件递交截止时间:2019年4月9日15时00分前。以密封的形式提供投标文件到:广州市番禺区大学城明志街1号信息枢纽楼9楼前台。投标文件信封或外包装上应当注明采购项目名称、投标人名称和“在(竞选文件中规定的开标日期)之前不得启封”的字样,封口处应加盖投标人印章。采购人接受现场递交或邮寄两种方式。采用邮寄方式的,应在邮寄外包装袋上注明“XX项目投标文件”字样。投标人递交投标文件后,请联系采购人确认。
(二)投标文件逾期递交、未送达指定地点的、或未按要求密封的,采购人有权不予受理。
六、 采购人联系方式:
(一)采购单位:广州大学城投资经营管理有限公司
(二)联系地址:广州市番禺区大学城明志街1号信息枢纽楼9楼,
联系人:廖先生,电话:020-30302079,电子邮件:[email protected]。
采购单位:广州大学城投资经营管理有限公司
2019年3月21日
广州大学城投资经营管理有限公司
广州大学城区域供冷中山大学化学与材料楼接口预留工程竞选文件
一、项目基本情况
(一)项目名称:广州大学城区域供冷中山大学化学与材料楼接口预留工程
(二)项目地点:广州大学城区域供冷中山大学化学与材料楼
(三)采购限价:人民币37万元(投标报价超过采购限价为无效投标)。
(四)项目概况
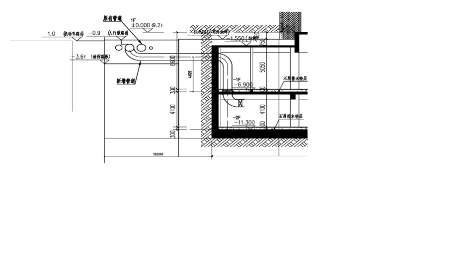
广州大学城中山大学化学与材料楼位于广外西路西侧,是中山大学校内新建的大楼,计划于今年7月份开始用冷,冷源是我司的区域供冷系统。现我司区域供冷管网已敷设至广外西路人行道,冷冻水管管径为DN700及DN500,现拟从该处DN700管道开口往西侧甩头至化材楼。
注:本文件中甲方特指采购人,乙方特指中标单位。
二、合格投标人资格要求
(一)必须是具有独立承担民事责任能力、在中华人民共和国境内注册的法人,按国家法律经营;
(二)具备有效的工商营业执照、企业法人组织机构代码证书、税务登记证书(或三证合一);
(三)已办理合法税务登记,具有开具相应增值税专用发票资格;
(四)持有建设行政主管部门颁发的企业资质证书及安全生产许可证,具备以下资质之一:
1、建筑机电安装工程专业承包三级或以上资质;
2、市政公用工程施工总承包三级或以上资质;
3、建筑工程施工总承包三级或以上资质。
(五)投标人近3年内(2016年1月1日至今) 完成过质量合格的类似管道施工项目施工业绩(需提供合同和验收报告等相关证明材料复印件,完成时间以竣工验收时间为准);
(六)不接受联合体报价。
三、项目内容及要求
(一)施工内容
1、道路、人行道开挖及恢复。
2、管道铺设、阀门安装。
3、其他配套工作。
(二)施工要求
1、设备的安装满足国家规范要求,管道、阀门及设备的安装位置以现场确认为准。
2、管道走向要求合理美观,管道安装前应对管道进行清理,拖刷并清除干挣内部的脏物,施工时管道不能有沙子及其他杂质,管道安装后进行系统冲洗。各设备的安装位置要便于日常的操作及检修。
3、管道末端设置盲板封堵,防止漏水。
4、管道安装要求:
1)管道对接时,先把管道端口修理平整后,打磨出坡口,用氩弧焊打底进行焊接;
2)焊缝外形均匀,焊道与焊道、焊道与原金属之间过渡平滑,焊渣和飞溅物要清除干净。
3)焊缝间距应符合CJJ 28-2004《城镇供热管网工程施工及验收规范》的规定。
4)对接焊缝应进行100%超声波无损探伤,首次探伤费用由业主负责,对不合格焊缝产生的探伤费用由施工单位负责。
5、土建施工
管穿外墙处须对墙孔进行封闭和墙面恢复。
外墙孔需要做好防水措施6、支架
6、防锈
所有新增管道及焊口均需刷两道防锈漆,新增及改造的支架刷两道防锈漆及三道浅灰面漆。
7、标识
冷冻水管道需做好供回水管及水流方向箭头标识,采用红色喷漆喷涂。阀门常开/闭标识挂牌等。
8、本项目中除已标明的甲供材料外,其他材料均由乙方提供。施工单位所提供的材料要求均为国标产品,我司对原料验收合格后方可使用及施工。
9、在设备搬运及安装期间必须对地面、墙面等做好保护措施,对造成污损及损坏的需无偿还原原状。
四、工程量及材料说明
以下工程量仅作参考,本项目由投标人包工包料(注明甲供材料除外),投标人勘踏现场后,应根据下表及结合现场实际情况综合考虑再进行报价。
主要工程量清单
| 序号 | 项目名称 | 项目特征描述 | 计量单位 | 工程量 | 备注 |
| 1 | 新旧管连接DN700 | 1、开孔 | 处 | 2 |
|
| 2 | 直埋式预制保温管DN600安装 | 1.材质及规格:预制发泡聚氨酯保温钢管DN600 | 米 | 24 |
|
| 3 | 螺旋焊钢管 | 1、规格:φ630*10mm | 米 | 12 |
|
| 4 | 预制聚氨酯发泡弯头DN600 | 1、45°弯头预制直埋保温弯头 | 个 | 4 |
|
| 5 | 预制聚氨酯发泡弯头DN600 | 1、90°弯头预制直埋保温弯头 | 个 | 2 |
|
| 6 | 碳钢管弯头90° DN600 | 1.种类:钢制弯头 | 个 | 4 |
|
| 7 | 预制聚氨酯发泡补口保温DN600 | 1、PE保温外护壳业主提供 | 个 | 8 |
|
| 8 | 焊接阀门DN700安装 | 1、 阀门甲供 2、 现场喷涂聚氨酯发泡加外护套锡纸 焊接连接 | 个 | 2 |
|
| 9 | 阀门DN600安装 | 1、 阀门甲供 2、 法兰安装 3、 金属石墨垫片 保温:橡塑保温棉厚50mm | 个 | 2 |
|
| 10 | DN700阀门操作井 | 1.名称:焊接阀门操作井 | 座 | 1 |
|
| 11 | 阀门井制作安装DN700 | 1.名称:冷冻水阀门井 | 座 | 1 |
|
| 12 | 挖沟槽土方 | 管道埋设回填土 | m3 | 120 |
|
| 13 | 回填土 | 土方回填 | m3 | 80 |
|
| 14 | 回填石粉 | 石粉垫层 | m3 | 30 |
|
| 15 | 余方弃置 | 土方外运 | m3 | 40 |
|
| 16 | 拆除人行道砖 | 现场勘查,拆除人行道 普通粘土砖 平铺 | m2 | 50 |
|
| 17 | 拆除路面 | 1.拆除沥青路面 | m2 | 30 |
|
| 18 | 人行道块料铺设 | 按原状恢复 | m2 | 50 |
|
| 19 | 沥青混凝土路面恢复 | 按原状恢复 | m2 | 30 |
|
| 20 | 绿化恢复 | 1、台湾草、勒杜鹃等 | m2 | 20 |
|
| 21 | 地下高质水DN300管线支护 | 1、含木桩支护费用 | 项 | 1 |
|
| 22 | 拆除混凝土结构 |
| m3 |
|
|
| 23 | 套管防水DN900 | 外墙预埋套管防水措施 | 点 | 2 |
|
| 24 | 通讯井(砖砌) |
| 座 | 1 |
|
备注:
1、 工程量清单报价时建议按上述表格人工、材料分开单列报价
2、 保温材料
2.1. 难燃B级(对应GB8624-2006)柔性发泡橡塑复合保温材料(外表面为热熔铝箔);
2.2、技术要求:湿阻因子μ≥20000 密度:40~55Kg/m3 烟密度等级≤50
2.3、导热系数≤0.033W/m.K(0°C) 氧指数≥32%
2.4、品牌范围: 福乐斯、华美、华德、阿姆斯壮
五、 项目工期、验收标准及质保期限
(一)施工工期
本项目总工期为30日历天(含节假日,连续计算),具体开工日期以甲方通知为准。
(二)工程验收标准及方式
1、质量要求:选用材料必须是环保材料及满足国家标准要求。
2、工程验收标准:满足《建筑工程施工质量验收统一标准》(GB500300-2006)、《城镇供热管网工程施工及验收规范》(CJJ_28-2014)及国家和行业相关的其他质量验收标准,完工后统一验收。
3、工程验收的方式:(1)施工单位在完工后,须提前3天提交工程验收进度计划给采购人,以便采购人组织相关人员对项目进行验收。(2)经采购人组织相关人员进行验收合格后,签发验收合格证明文件。(3)施工单位必须将产品所有资料(如有,包括但不限于设备检验合格证书、3C认证证书等)提交采购人,同时将与项目有关的竣工资料一式两份一起提交给采购人。
4、质保期及质保期内需履行的特殊义务:质保期2年。
六、工程费用及支付方式
(一)本工程采用综合单价包干,包工、包料、包工期、包质量、包安全、包安全文明施工、包验收、包调试、包结算、包资料整理、包综合治理、包风险、包利润和管理费等完成本项目的全部费用。
(二)本项目的投标总价应包含投标人按施工现场现状及施工范围根据采购人要求完成项目约定全部工作所需的税费及相关措施费及合同实施过程中应预见和不可预见的费用等等。工程量清单和竞选范围内的报价如有漏计或漏项的,视为投标人单方面作出的让利,费用不另行增加。
(三)付款方式
在本工程合同履行期内,若国家税费调整,合同含税金额按国家规定税率作出相应调整,供方每次申请付款应按照合同内容开具相应税率的合法有效的增值税专用发票。
合同付款按施工进度支付,具体为:
1、形象进度完成30%时,甲方收到乙方请款资料后15个工作日内支付工程款至合同暂定总价的15%。
2、形象进度完成60%时,甲方收到乙方请款资料后15个工作日内支付工程款至合同暂定总价的40%。
3、形象进度完成80%时,甲方收到乙方请款资料后15个工作日内支付工程款至合同暂定总价的60%。
4、项目全部完工并竣工验收合格并按甲方要求完成合同结算手续后,甲方收到乙方请款资料后15个工作日内支付工程款至合同结算总造价的95%。
5、质保期期满且乙方质保期义务按要求履行完毕后,甲方收到乙方请款资料后15个工作日内付清余款(不计利息)。
6、每次付款前乙方开具符合国家税务规定的等额合格的增值税专用发票给甲方。乙方晚于付款期限提供的,甲方付款期限相应顺延。
七、投标文件
根据采购人要求的投标文件格式,进行密封报价(盖章)。投标文件应包含以下内容:
(一)商务部分(提供复印件,并加盖公章)
1、 有效的企业工商营业执照、企业法人组织机构代码证书、税务登记证书(或三证合一);
2、 供应商调查表(格式见附件2)
3、 法定代表人证明书、法定代表人授权委托书原件(格式见附件3和附件4);
4、 有效的资质证书和安全生产许可证;
5、 本工程拟派项目负责人简历表(包括姓名、部门和职务、所学专业和毕业院校名称及毕业时间、主要资历、经验及承担过的类似项目,获得认证资质证书及复印件);
6、 近3年内(2016年1月1日至今) 完成过质量合格的类似项目施工业绩(需提供合同和验收报告等相关证明材料复印件);
7、 投标人认为有必要的其他材料复印件。
(二)技术部分(格式自定,加盖公章)
施工方案:施工单位应充分了解现场条件,并针对本项目制定切实可行的施工方案,包括但不限于:
1、 总体实施方案;
2、 实施进度计划和工期承诺书;
3、 确保实施进度的技术和组织措施;
4、 确保安全文明施工的技术和组织措施;
5、 投入的机械设备;
6、 投标人认为其它需要说明的文字。
(三)价格文件(加盖公章)
1、 报价一览表(格式见附件1)
2、 报价明细表:采用工程量清单计价,按本竞选文件所附工程量清单和乙供主要材料清单报价,并以此作为结算依据,包括但不限于工程量清单和乙供主要材料清单各项目单价及综合总报价,并注明未含税总价、税率和含税总价。
八、评标方法
本项目采用经评审的最低投标价法确定中标候选人。同时通过投标人资格审查(见附件5)和投标文件有效性审查(见附件6)后,各投标人按有效投标报价由低至高的顺序依次排列,排名第一为第一中标候选人。投标人实行信用评价管理,具体见附件7和附件8。
九、勘踏现场
投标人有必要勘踏现场,充分了解清楚施工现场的环境和要求,以便投标人获取那些须投标人自己负责的有关编制投标文件和签署合同所涉及现场所有的资料。一旦中标,这种考察即被认为其结果已在中标文件中得到充分反映。考察现场的费用由投标人自己承担,如因对现场不了解导致报价的失误,由投标人承担。勘踏现场时间:2019年3月26日15时,集中地点:广州市番禺区大学城明志街1号信息枢纽楼一楼西门。勘踏现场联系人工程部汤工,联系电话:020-39302054。投标人未在规定时间勘踏现场的,采购人不再另行组织,由投标人自行前往勘踏。
十、递交投标文件
(一)投标文件递交截止时间:2019年4月9日北京时间15时00分前。以密封的形式提供投标文件到:广州市番禺区大学城明志街1号信息枢纽楼前台。投标文件信封或外包装上应当注明采购项目名称、投标人名称和“在(竞选文件中规定的开标日期)之前不得启封”的字样,封口处应加盖投标人印章。采购人接受现场递交或邮寄两种方式。采用邮寄方式的,应在邮寄外包装袋上注明“XX项目投标文件”字样。投标人递交投标文件后,请联系采购人确认。
(二)投标文件逾期递交、未送达指定地点的、或未按要求密封的,采购人有权不予受理。
十一、本竞选文件在广东省招标投标监管网(网址:http://www.gdzbtb.gov.cn/)、广州大学城投资经营管理有限公司网站(网址:/)同时发布。本竞选文件在各媒体发布的文本如有不同之处,以在广州大学城投资经营管理有限公司网站发布的文本为准。
十二、采购人地址和联系方式
采购单位:广州大学城投资经营管理有限公司
联系地址:广州市番禺区大学城明志街1号信息枢纽楼9楼
联系人:廖先生
联系电话:020-39302079
附件1:报价一览表
附件2:供应商调查
附件3:法定代表人身份证明书
附件4:法定代表人授权委托证明书
附件5:投标人资格审查表
附件6:投标文件有效性审查表
附件7:公开竞选供应商信用评价
附件8:供应商信用指标及评价标准
附件9:附图
采购人:广州大学城投资经营管理有限公司
2019年3月21日
附件1
报价一览表
项目名称:广州大学城区域供冷中山大学化学与材料楼接口预留工程
| 序号 | 项目名称 | 投标价(单位:人民币元) | |
| 1 | 投标总价 | 大写: 小写: | |
| 其中 | 不含税总价 | 大写: 小写: | |
| 2 | 投标工期 |
| |
| 3 | 工程质量标准 |
| |
| 4 | 保修期限 |
| |
| 5 | 拟委派的项目负责人 | 姓名 |
|
| 技术职称 |
| ||
| 联系电话 |
| ||
注:(1)投标总价为人民币报价。
(2)投标总价是所有需采购人支付的本次项目采购的金额总数,应包括竞选文件要求的全部内容,投标人完成本项目(如果中标)所必须的所有成本费用和投标人应承担的一切税费,包括但不限于全部人工费、材料、设备、工具、机具、安装运输、规费、措施费、合理利润、管理费、税费等及清理现场的费用、合同实施过程中应预见和不可预见的费用等等。
(3)若用小写表示的金额和用大写表示的金额不一致,以大写表示的金额为准。
投标人名称(盖章):
日期:年月日
附件2
| 供应商调查表 | |||||||||||
| 项目名称:广州大学城区域供冷中山大学化学与材料楼接口预留工程 | |||||||||||
| 供应商名称 |
| 法人代表 |
| ||||||||
| 详细地址 |
| 邮 编 |
| ||||||||
| 成立日期 |
| 营业执照号码 |
| 发证机构 |
| ||||||
| 固定电话号码 |
| 传真号码 |
| 注册资金 |
| ||||||
| 公司类型 |
| 机构性质 |
| ||||||||
| 项目联系人 |
| 联系电话 |
| ||||||||
| 经营范围 |
| ||||||||||
| 序号 | 资质证书(认证项目)名称 | 发证机关 | |||||||||
| 1 |
|
| |||||||||
| 2 |
|
| |||||||||
| 3 |
|
| |||||||||
|
|
|
| |||||||||
| 主要服务行业 |
| 主要客户 |
| ||||||||
| 近三年类似业绩 | |||||||||||
| 序号 | 服务单位 | 项目内容 | |||||||||
| 1 |
|
| |||||||||
| 2 |
|
| |||||||||
| 3 |
|
| |||||||||
|
|
|
|
|
|
|
|
|
|
| ||
|
报名单位(盖章): | |||||||||||
日期:20年月日
附件3
法定代表人身份证明书
在我单位任职务,是我单位法定代表人,身份证号为,特此证明。
(单位盖章)
日期:20年月日
单位通信地址:
邮政编码: 单位联系电话:
附:法人代表身份证正反面或其他身份证明材料复印件
附件4
法定代表人授权委托证明书
兹授权(委托代理人姓名)为我方委托代理人,其权限是:办理 (采购单位名称)组织的“ (项目名称)”的投标和合同执行,以我方的名义处理一切与之有关的事宜。
本授权书自年月日签章之日起生效,特此声明。
附:代理人性别: 年龄: 职务:
身份证号码:
(营业执照等)注册号码:
企业类型:
经营范围:
附:被授权人有效身份证正反面或其他身份证明材料复印
(单位盖章):
法定代表人(签字或盖章):
被授权人(签字或盖章):
日期: 20 年 月 日
说明:法定代表人亲自办理投标事宜的,无需提交本证明书。
附件5
投标人资格审查表
项目名称:广州大学城区域供冷中山大学化学与材料楼接口预留工程
| 序号 | 评审内容 | 备注 |
| 1 | 具备有效的工商营业执照、企业法人组织机构代码证书、税务登记证书(或三证合一)(复印件盖章) |
|
| 2 | 法定代表人证明书原件或法定代表人授权委托书原件 |
|
| 3 | 持有建设行政主管部门颁发的以下资质之一(复印件盖章): 1、建筑机电安装工程专业承包三级或以上资质; 2、市政公用工程施工总承包三级或以上资质; 3、建筑工程施工总承包三级或以上资质。 |
|
| 4 | 有效的安全生产许可证(复印件盖章) |
|
| 5 | 近3年内(2016年1月1日至今) 完成过质量合格的类似项目施工业绩(需提供合同和验收报告等相关证明材料复印件) |
|
|
| 评审结论(通过/不通过) |
|
注:
1.投标人分栏中填写“√”表示该项符合竞选文件要求,“×”表示该项不符合竞选文件要求,“○”表示无该项内容;
2.经评标委员会审核后,出现一个“×”的结论为“不通过”,即按废标处理。
3.表中全部条件满足为“通过”,同意进入下一阶段评审。
4.如对本表中某种情形的评委意见不一致时,以评标委员会过半数成员的意见作为评标委员会对该情形的认定结论。
评委签名:
日 期: 年 月 日
附件6
投标文件有效性审查表
项目名称:广州大学城区域供冷中山大学化学与材料楼接口预留工程
| 序号 | 评审内容 | 投标人 |
| 1 | 投标文件未按竞选文件的规定密封、盖章和签署; |
|
| 2 | 投标文件未按竞选文件规定的格式填写,内容不全或关键字迹模糊、无法辩认; |
|
| 3 | 对同一竞选项目出现两个或以上的投标报价,且没声明哪个有效; |
|
| 4 | 投标总报价低于企业自身成本; |
|
| 5 | 投标报价超过采购限价; |
|
| 6 | 工期不满足竞选文件要求的; |
|
| 7 | 施工方案或施工组织设计未响应竞选文件中已明确必须要作实质性响应的内容; |
|
| 8 | 投标文件附有采购人不能接受的条件; |
|
| 9 | 不符合竞选文件中规定的其他实质性要求。 |
|
|
| 评审结论(通过/不通过) |
|
注:
5.投标人分栏中填写“√”表示该项符合竞选文件要求,“×”表示该项不符合竞选文件要求,“○”表示无该项内容;
6.经评标委员会审核后,出现一个“×”的结论为“不通过”,即按废标处理。
7.表中全部条件满足为“通过”,同意进入下一阶段评审。
8.如对本表中某种情形的评委意见不一致时,以评标委员会过半数成员的意见作为评标委员会对该情形的认定结论。
评委签名:
日 期: 年 月 日
附件7、
公开竞选供应商信用评价
一.、信用评价,是指采购人对参加公开竞选采购的供应商的诚信度和履约进行鉴别和打分。
二.、供应商信用评价内容
供应商信用综合评价根据《供应商信用指标和评价标准》(附件8)进行评价。信用综合评价内容为评价年度周期内供应商的信用表现,包括良好行为和不良行为两个方面。
三、评价结果应用
(一)公开竞选采购项目可在各评标办法中应用供应商信用评价评标。
(二)采用经评审的最低价投标法评标的,在推荐中标候选人时,应对通过资格和有效性评审的投标人按照评标价进行排序,即:评标价=有效报价×(1-信用系数),信用系数计取方法见附件1,供应商第一次参与投标的,信用系数按0计算。当出现二个或二个以上投标人的评标价的取值相同时,由评委会随机抽取确定。
(三)综合评分法
1、采用综合评分法评标的,采购项目的评标总分为100分,投标供应商得分由商务评分、技术评分、价格评分组成,其中价格评分中的评标价引用信用系数计算确定,即:评标价=有效报价×(1-信用系数),联合体参与投标的,按联合体企业中最低供应商信用系数认定。
2、当出现二个或二个以上投标人的总得分相同时,由评委会随机抽取确定。
四、违约处理
(一) 排序第1位的供应商出现以下情形的,将暂停其公开竞选资格6个月:中标、确定为合同供方/承包人后,无正当理由拒绝履行合同和有关承诺的,或擅自变更、中止(终止)合同的。
(二)供应商出现下列情形之一的,采购人有权暂停其公开竞选资格1年:
1、实际提供的有关产品性能指标或技术服务能力或施工质量明显低于报价响应时承诺的;
3、一年内供应商在采购项目中累计履约评价为不合格2次的;
3、供应商提供虚假材料或与其它供应商恶意串通谋取成交的;
4、发生其他违规或违约情况,造成严重损害的;
5、其它经采购人认定的。
附件8
供应商信用指标及评价标准
| 项目 | 子项 | 评价标准 |
| 良好行为 | 供应商按约定履行合同受到奖励的 | 每发生1次,自认定之日起一年内信用系数加2%, |
| 不良行为 | 供应商提供虚假材料或与其它供应商恶意串通谋取中标、成交的; | 严重不良行为,每发生1次,自认定之日起一年内信用系数扣5% |
| 中标、确定为合同供方/承包人后,无正当理由拒绝履行合同和有关承诺的,或擅自变更、中止(终止)合同的; | ||
| 实际提供的有关产品性能指标和技术服务能力、施工质量明显低于采购响应文件或竞选时的承诺的; | ||
| 中标、成交后,将合同转包给其他供应商的; | ||
| 中标、成交后,将合同擅自分包给其他供应商的; | 一般不良行为,每发生1次,自认定之日起一年内信用系数扣2% | |
| 开标后擅自撤回采购相应文件,影响采购活动继续进行的; | 轻微不良行为,每发生1次,自认定之日起一年内信用系数扣1.25% | |
| 供应商因未按约定履行合同受到违约处罚的。 |
备注:
1. 供应商信用系数每个评价年度周期的初评按0计算。
2. 经采购人批准认定的同一供应商良好行为或不良行为,在评价年度周期内信用系数可累加计算。
供应商在一个评价年度周期内未发生任何信用系数扣罚的,在下一个评价年度周期内初评信用系数的基础上奖励加3%,连续两个评价年度周期内未发生任何信用系数扣罚的,在下一个评价年度周期内初评信用系数的基础上奖励加5%,连续三个及以上评价年度周期内未发生任何信用系数扣罚的,在下一个评价年度周期内初评信用系数的基础上奖励加8%。
附件9:附图


招标文件下载链接: