日期:2019-05-06
我司现就广州大学城(小谷围岛)建设项目区域供冷中山大学广州校区东校园化学与材料楼项目接入及配套工程设计采购进行公开竞选。有关事项公告如下:
一、项目名称及竞选内容
(一) 项目名称:广州大学城(小谷围岛)建设项目区域供冷中山大学广州校区东校园化学与材料楼项目接入及配套工程设计采购
(二) 项目内容
按采购人提供的竞选文件、图纸、工程量清单,承包广州大学城(小谷围岛)建设项目区域供冷中山大学广州校区东校园化学与材料楼项目接入及配套工程设计采购的竞选文件所包含的全部内容,具体以竞选文件及相关资料为准。
二、合格投标人资格要求
(一)必须是具有独立承担民事责任能力、在中华人民共和国境内注册的法人;
(二)具备有效的工商营业执照、企业法人组织机构代码证书、税务登记证书(或三证合一);
(三)已办理合法税务登记,具有开具相应增值税专用发票资格;
(四)具备建筑工程设计乙级资质;
(五)投标人近3年内(2016年1月1日至今)完成质量合格的类似设计项目业绩;
(六)本项目不接受联合体报价。
三、竞选文件公示
本项目的竞选公告及相关信息公示时间:2019年5月7日至2019年5月21日。在广东省招标投标监管网(网址:http://www.gdzbtb.gov.cn/login)、广州大学城投资经营管理有限公司网站(网址:/)上发布,并视为有效送达。本公告的修改、补充,在广州大学城投资经营管理有限公司网站发布。本竞选公告在各媒体发布的文本如有不同之处,以在广州大学城投资经营管理有限公司网站发布的文本为准。项目相关竞选文件等资料请自行在网站下载。
四、获取竞选文件
获取竞选文件方式:在公示有效期内,工作日北京时间上午9:00至12:00,下午14:00至17:00,可联系采购人获取该项目竞选文件或自行在网站下载。
五、递交投标文件
(一)递交投标文件地点:投标单位以密封的形式提供投标文件到:广州市番禺区大学城明志街1号信息枢纽楼9楼采购合同部,采购人接受现场递交或邮寄两种方式。
(二)投标文件递交截止时间:2019年5月21日北京时间15时30分前。投标文件信封未密封,或未在骑缝处盖章或签字,或逾期送达的采购人有权不予受理。
六、采购人联系方式:
(一)采购单位:广州大学城投资经营管理有限公司
(二)联系地址:广州市番禺区大学城明志街1号信息枢纽楼9楼,
联系人:李工,电话:020-39302078,电子邮件:[email protected]
采购单位:广州大学城投资经营管理有限公司
2019年5月6日
广州大学城投资经营管理有限公司
广州大学城(小谷围岛)建设项目区域供冷中山大学广州校区东校园化学与材料楼项目接入及配套工程
设计采购竞选文件
一、项目基本情况
1、项目名称:广州大学城(小谷围岛)建设项目区域供冷中山大学广州校区东校园化学与材料楼项目接入及配套工程设计采购
2、项目地点:广州大学城
3、采购限价:45万元
4、项目概况:
中山大学广州大学城校区东校园化学与材料楼项目总建筑面积:137730.7㎡,地下2层,地上10层,总建筑高度47.9m。地下一、二层均设置有机动车停车位,人防工程设计在地下二层,人防总建筑面积: 14624㎡。地上部分使用功能包含教学、实验、办公、研究、展示等。
该项目空调冷热源主要满足大楼舒适性中央空调(冷热源)和工艺通风(冷源)要求。原设计采用自设冷热源形式,在地下室负二层设舒适性中央空调制冷机房,共设5台电制冷冷水机组,冷冻水供回水温度为7/12℃。其中3台制冷量为3516kW(1000RT)的水冷冷水机组,配置四台冷冻水泵,三用一备;2台制冷量为1582kW(450RT)的水冷冷水机组,配置三台冷冻水泵,两用一备。5台冷水机组共提供冷量 13712 KW。工业通风冷源为整栋大楼新风补风除湿用,冷冻水供回水温度为7/12℃,计算总冷负荷为9200kw,采用风冷磁悬浮变频离心机组10台,每台机组制冷量为920kw。冬天舒适性空调供暖为屋面风冷冷热水机组供给,设6台热水机组,每台748kW,供回水温度为45/40℃。
校方从保护环境、降低投资角度决定该项目冷源采用采购方的大学城区域供冷,热源也初步决定由采购方的冷回收机组提供,采用冷回收的形式,进一步降低冷污染排放。根据采购方与校方的初步沟通结果,采购方负责机房内设备的投资(除集分水器),电气部分冷回收机组和冷回收水泵由采购方负责低压柜(含)及至末端的电缆,其他电气均有校方投资和负责用电费用支付。
本设计采购主要为采购方投资部分工程的设计采购。
二、合格投标人资格要求
(一)必须是具有独立承担民事责任能力、在中华人民共和国境内注册的法人;
(二)具备有效的工商营业执照、企业法人组织机构代码证书、税务登记证书(或三证合一);
(三)已办理合法税务登记,具有开具相应增值税专用发票资格;
(四)具备建筑工程设计乙级资质;
(五)投标人近3年内(2016年1月1日至今)完成质量合格的类似设计项目业绩;
(六)本项目不接受联合体报价。
三、供冷方案
本供冷方案为暂定方案,具体后续方案可能受校方的用冷用热需求、设备选型及布置影响而改动。
(一)负荷计算
根据设计资料,总用冷负荷为23000kW,用热负荷为4500kW。
(二)冷热源
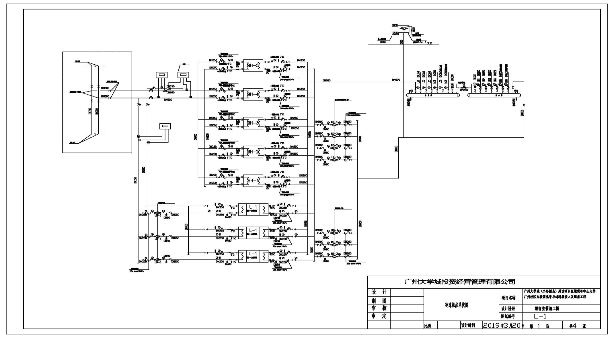
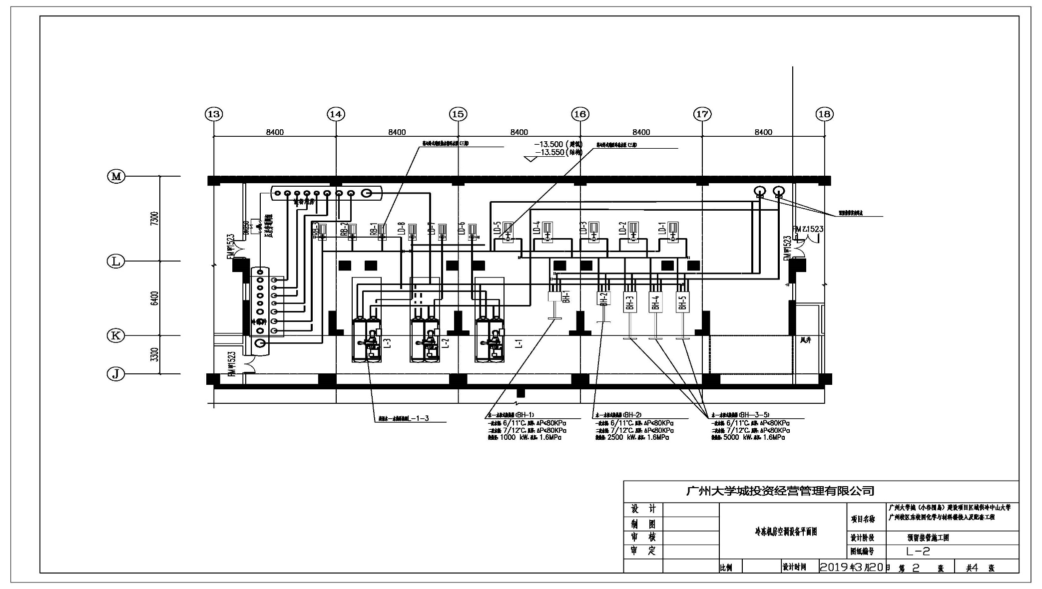
改造后的冷冻机房系统图如图1所示,空调设备平面图如图2所示。
1、冷源
采用双区域供冷系统冷源供冷方式,从化学与材料北侧外墙引入,一路来自第二冷站、一路来自第三冷站,供冷保障方式与超算中心相同。
板式换热器:将空调专业冷源和工艺通风专业冷源合并,配置5台4600kW板换,区域供冷侧供回水温度6/11℃,用户侧供回水温度7/12℃。
水泵:配置5台高效冷冻水循环泵(变频运行),流量800立方/小时,扬程340kPa,水泵电机功率90kW。
2、热源
选用3台螺杆冷回收机组,热水侧供回水温度为45/40℃,冷水侧供回水温度6/11℃,设计工况下供热能力1500kW,电机输入功率340kW。采用以热定冷方式运行,冷冻水直接进入区域供冷管网。配三台热水循环水泵,每台流量260立方/小时,扬程340kPa,水泵电机功率30kW。选用三台冷水循环泵,每台流量260立方/小时,扬程320kPa,水泵电机功率30kW。
3、冷源接入路由
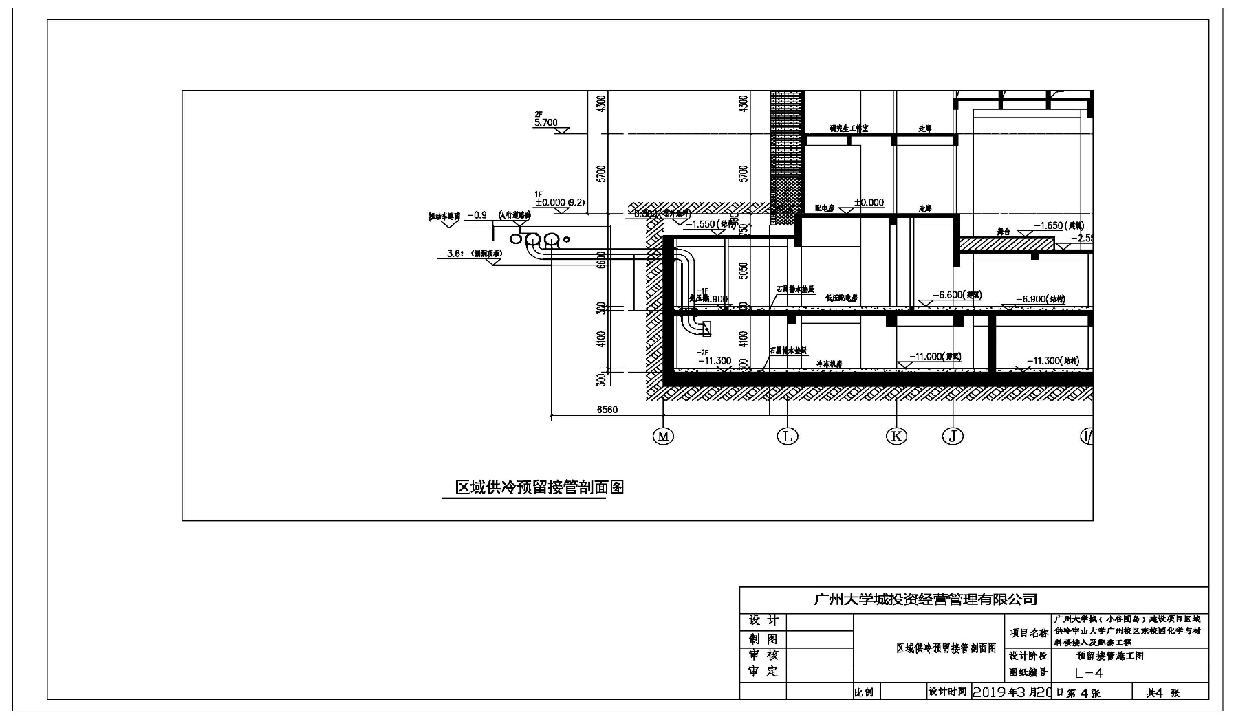
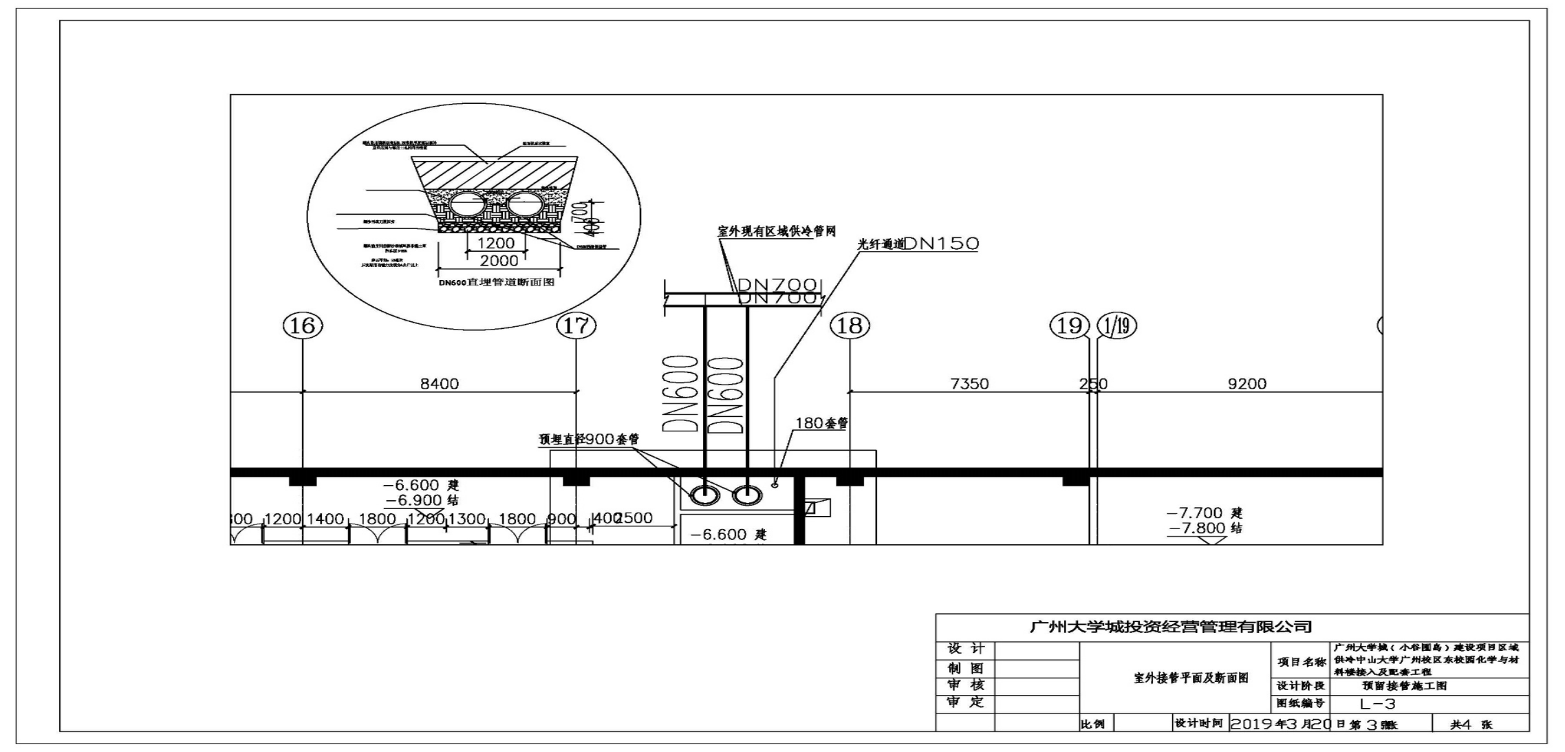
根据项目所在地管网情况,提出从广外一路接管的方案,如图3及图4所示。

图1冷冻机房系统图

图2 冷冻机房空调设备平面图

图3 区域供冷预留接管剖面图

图4 室外接管平面图
四、用冷计量
(一)根据校园文化活动中心的使用用途,宜采用总管冷量计量方式与其它教学楼相同(安装示意图见图1),在进楼总管安装冷量计,按实际使用量计量。其原理如下:
(二)按冷量方式计费,在入户回水总管安装冷量表。当水流经系统时,根据流量传感器给出的流量和配对温度传感器给出的供回水温度,以及流经的时间,通过计算器可计算并显示该系统所释放的冷量。其基本公式如下所示。
![]()
式中:
Qc—释放的冷量或吸收的热量,J;
qm—流经热量表的水的质量流量,kg/h;
qv—流经热量表的水的体积流量,m3/h;
ρ—流经热量表的冷水的密度,kg/m3;
△h—在热交换系统的入口和出口温度下,水的焓值差,J/kg;
τ—时间。
(三)末端管网
考虑到通风工艺通风无冷负荷需求,可将舒适性空调、工艺通风管网进行合并。本部分属于校方投资范围,校方负责实施。
五、设计范围
(一)包含采购方投资部分的所有专业设计及由冷源调整导致的由采购方负责落实的相关设计变更,主要包含以下内容:
1、室外供冷管道设计;
2、所有专业的方案设计、施工图设计,并提供设计概算;
3、协助采购方招标采购、施工、调试、验收;
4、本项目设计涉及中山大学广州大学城校区东校园化学与材料楼施工图纸等基础资料收集由中标人负责;设计工作中存在与中山大学广州大学城校区东校园化学与材料楼建设项目的业主单位、代建单位、施工单位及设计单位之间的沟通协调工作由中标人负责。
六、成果提交进度要求
1、2019年5月25日前设计单位开始设计图纸;
2、2019年5月30日前完成方案设计并提供设计概算或施工图预算,和主设备清单和主设备技术需求书,以便我司进行设备采购;
3、2019年6月4日前完成施工图设计;
4、2020年8月15日前完成竣工图提交。
七、费用及支付方式
(一)本项目设计收费按《工程勘察设计收费标准2002年修订本》计算并进行下浮,并按设计收费中标价与竞选的工程造价估算值折算费率,设计费结算时工程造价按本项目工程施工合同价进行调整。在施工过程中如果因设计不合理而需要变更设计,或者发包人需要进行非实质性的设计调整或变更,不另收设计费。实际设计费按工程施工合同核定,多退少补。实际设计费与估算设计费出现差额时,不另行签订补充协议。
(二)付款方式
1、合同签订后,甲方收到乙方请款资料后15个工作日内支付合同价的30%预付款;
2、乙方在要求时间内提交设计成果资料并经甲方确认,甲方收到乙方请款资料后15个工作日内支付至合同价的70%;
3、本项目施工合同签订后,设计合同金额按施工合同价进行调整并进行结算,结算完成甲方收到乙方请款资料后15个工作日内,支付至设计合同结算总价的95%;
4、本项目工程竣工验收合格,乙方按要求递交项目竣工图纸,甲方收到乙方请款资料后15日内付清余款。
八、投标文件
根据甲方要求的投标文件格式,进行密封报价(盖章)。投标文件应包含以下内容:
(一)技术部分(格式自定,加盖公章)
设计方案:设计单位应充分了解现场条件,并针对本项目制定切实可行的设计方案,包括但不限于:
1、总体设计方案;
2、工期计划(请根据成果提交要求制定工期计划);
3、投标人认为其它需要说明的文字。
(二)商务部分(提供复印件,并加盖公章)
1、有效的企业工商营业执照、企业法人组织机构代码证书、税务登记证书(或三证合一);
2、供应商调查表(格式见附件2);
3、法定代表人证明书、法定代表人授权委托书原件(格式见附件3和附件4);
4、建筑工程设计乙级资质证书;
5、本工程拟派项目负责人简历表(包括姓名、部门和职务、所学专业和毕业院校名称及毕业时间、主要资历、经验及承担过的类似项目,获得认证资质证书及复印件);
6、近3年内(2016年1月1日至今)完成过质量合格的类似设计项目业绩(提供设计合同复印件);
7、投标人认为有必要的其他资质等材料复印件。
(三)价格部分(加盖公章)
1、报价一览表(格式见附件1)
2、报价明细表(格式自拟)
九、评标方法
本项目采用经评审的最低投标价法确定中标候选人。同时通过投标人资格审查(见附件5)和投标文件有效性审查(见附件6)后,各投标人按有效投标报价由低至高的顺序依次排列,排名第一为第一中标候选人。投标人实行信用评价管理,具体见附件7和附件8。
十、勘踏现场
投标人有必要勘踏现场,充分了解清楚施工现场的环境和要求,以便投标人获取那些须投标人自己负责的有关编制投标文件和签署合同所涉及现场所有的资料。一旦中标,这种考察即被认为其结果已在中标文件中得到充分反映。考察现场的费用由投标人自己承担,如因对现场不了解导致报价的失误,由投标人承担。勘踏现场时间:2019年5月13日10:00时,集中地点:广州市番禺区大学城明志街1号信息枢纽楼一楼西门。勘踏现场联系人巫工,联系电话:020-39302051。投标人未在规定时间勘踏现场的,甲方不再另行组织,由投标人自行前往勘踏。
十一、递交投标文件
(一)递交投标文件地点:投标单位以密封的形式提供投标文件到:广州市番禺区大学城明志街1号信息枢纽楼9楼采购合同部,甲方接受现场递交或邮寄两种方式。
(二)投标文件递交截止时间:2019年5月21日北京时间15时30分前。递交的投标文件或投标文件信封未密封,或未在骑缝处盖章或签字,或逾期送达的甲方有权不予受理。
十二、本竞选文件在广东省招标投标监管网(网址:http://www.gdzbtb.gov.cn/)、广州大学城投资经营管理有限公司网站(网址:/)同时发布。本竞选文件在各媒体发布的文本如有不同之处,以在广州大学城投资经营管理有限公司网站发布的文本为准。
十三、采购人地址及联系方式
采购单位:广州大学城投资经营管理有限公司
联系地址:广州市番禺区大学城明志街1号信息枢纽楼9楼
联系人:李工
联系电话:020-39302078
附件1:报价一览表
附件2:供应商调查表
附件3:法定代表人身份证明书
附件4:法定代表人授权委托证明书
附件5:投标人资格审查表
附件6:投标文件有效性审查表
附件7:公开竞选供应商信用评价
附件8:供应商信用指标及评价标准
采购人:广州大学城投资经营管理有限公司
2019年5月6日
附件1
报价一览表
项目名称:广州大学城(小谷围岛)建设项目区域供冷中山大学广州校区东校园化学与材料楼项目接入及配套工程设计采购
| 序号 | 项目名称 | 投标价(单位:人民币元) | |
| 1 | 投标总价 | 大写: 小写: | |
| 2 | 投标工期 |
| |
| 3 | 拟委派的项目 负责人 | 姓 名 |
|
| 技术职称 |
| ||
注:(1)投标总价为人民币报价。
(2)投标总价应包括投标人完成本项目(如果中标)所必须的所有成本费用和投标人应承担的一切税费,包括但不限于全部人工费、材料、成果资料制作、交通、差旅费、利润及税费等完成项目内容所需的全部费用。投标人认为需要发生的其他相关服务等等。
(3)若用小写表示的金额和用大写表示的金额不一致,以大写表示的金额为准。
投标人名称(盖章):
日期:2019年 月 日
附件2
| 供应商调查表 项目名称:广州大学城(小谷围岛)建设项目区域供冷中山大学广州校区东校园化学与材料楼项目接入及配套工程设计采购 | |||||||||
| 单位名称 |
| 法人代表 |
| ||||||
| 详细地址 |
| 邮 编 |
| ||||||
| 成立日期 |
| 营业执照号码 |
| 发证机构 |
| ||||
| 固定电话号码 |
| 传真号码 |
| 注册资金 |
| ||||
| 公司类型 |
| 机构性质 |
| ||||||
| 项目联系人 |
| 联系电话 |
| ||||||
| 经营范围 |
| ||||||||
| 序号 | 资质证书(认证项目)名称 | 发证机关 | |||||||
| 1 |
|
| |||||||
| 2 |
|
| |||||||
| 3 |
|
| |||||||
|
|
|
| |||||||
| 主要服务行业 |
| 主要客户 |
| ||||||
| 近三年类似业绩 | |||||||||
| 序号 | 服务单位 | 项目内容 | |||||||
| 1 |
|
| |||||||
| 2 |
|
| |||||||
| 3 |
|
| |||||||
报名单位(加盖公章):
日期:2019年 月 日
附件3
法定代表人身份证明书
在我单位任职务,是我单位法定代表人,身份证号为 ,特此证明。
(单位盖章)
日期:2019年 月 日
单位通信地址:
邮政编码: 单位联系电话:
附:法人代表身份证正反面或其他身份证明材料复印件
附件4
法定代表人授权委托证明书
兹授权(委托代理人姓名)为我方委托代理人,其权限是:办理 广州大学城投资经营管理有限公司组织的“广州大学城(小谷围岛)建设项目区域供冷中山大学广州校区东校园化学与材料楼项目接入及配套工程设计采购项目”的投标和合同执行,以我方的名义处理一切与之有关的事宜。
本授权书自2019年 月 日签章之日起生效,特此声明。
附:代理人性别: 年龄: 职务:
身份证号码:
附:被授权人有效身份证正反面或其他身份证明材料复印
(单位盖章):
法定代表人(签字或盖章):
被授权人(签字或盖章):
日期: 2019年 月 日
说明:法定代表人亲自办理投标事宜的,无需提交本证明书。
附件5
投标人资格审查表
项目名称:广州大学城(小谷围岛)建设项目区域供冷中山大学广州校区东校园化学与材料楼项目接入及配套工程设计采购
| 序号 | 评审内容 | 备注 |
| 1 | 具备有效的工商营业执照、企业法人组织机构代码证书、税务登记证书(或三证合一)(复印件盖章) |
|
| 2 | 法定代表人证明书原件或法定代表人授权委托书原件 |
|
| 3 | 具备建筑工程设计乙级资质证书(复印件盖章) |
|
| 4 | 无近3年内(2016年1月1日至今) 类似设计项目业绩 |
|
|
| 评审结论(通过/不通过) |
|
注:
1.投标人分栏中填写“√”表示该项符合竞选文件要求,“×”表示该项不符合竞选文件要求,“○”表示无该项内容;
2.经评标委员会审核后,出现一个“×”的结论为“不通过”,即按废标处理。
3.表中全部条件满足为“通过”,同意进入下一阶段评审。
4.如对本表中某种情形的评委意见不一致时,以评标委员会过半数成员的意见作为评标委员会对该情形的认定结论。
评委签名:
日 期:2019年 月 日
附件6
投标文件有效性审查表
项目名称:广州大学城(小谷围岛)建设项目区域供冷中山大学广州校区东校园化学与材料楼项目接入及配套工程设计采购
| 序号 | 评审内容 | 投标人 |
| 1 | 投标文件未按竞选文件的规定密封、盖章和签署; |
|
| 2 | 投标文件未按竞选文件规定的格式填写,内容不全或关键字迹模糊、无法辩认; |
|
| 3 | 对同一竞选项目出现两个或以上的投标报价,且没声明哪个有效; |
|
| 4 | 投标总报价高于采购限价; |
|
| 5 | 投标总报价低于企业自身成本; |
|
| 6 | 工期不满足竞选文件要求的; |
|
| 7 | 设计方案未响应竞选文件中已明确必须要作实质性响应的内容; |
|
| 8 | 投标文件附有采购人不能接受的条件; |
|
| 9 | 不符合竞选文件中规定的其他实质性要求。 |
|
|
| 评审结论(通过/不通过) |
|
注:
1.投标人分栏中填写“√”表示该项符合竞选文件要求,“×”表示该项不符合竞选文件要求,“○”表示无该项内容;
2.经评标委员会审核后,出现一个“×”的结论为“不通过”,即按废标处理。
3.表中全部条件满足为“通过”,同意进入下一阶段评审。
4.如对本表中某种情形的评委意见不一致时,以评标委员会过半数成员的意见作为评标委员会对该情形的认定结论。
评委签名:
日 期:2019年 月 日
附件7
公开竞选供应商信用评价
一.、信用评价,是指采购人对参加公开竞选采购的供应商的诚信度和履约进行鉴别和打分。
二.、供应商信用评价内容
供应商信用综合评价根据《供应商信用指标和评价标准》(附件8)进行评价。信用综合评价内容为评价年度周期内供应商的信用表现,包括良好行为和不良行为两个方面。
三、评价结果应用
(一)公开竞选采购项目可在各评标办法中应用供应商信用评价评标。
(二)采用经评审的最低价投标法评标的,在推荐中标候选人时,应对通过资格和有效性评审的投标人按照评标价进行排序,即:评标价=有效报价×(1-信用系数),信用系数计取方法见附件8,供应商第一次参与投标的,信用系数按0计算。当出现二个或二个以上投标人的评标价的取值相同时,由评委会随机抽取确定。
(三)综合评分法
1、采用综合评分法评标的,采购项目的评标总分为100分,投标供应商得分由商务评分、技术评分、价格评分组成,其中价格评分中的评标价引用信用系数计算确定,即:评标价=有效报价×(1-信用系数),联合体参与投标的,按联合体企业中最低供应商信用系数认定。
2、当出现二个或二个以上投标人的总得分相同时,由评委会随机抽取确定。
四、违约处理
(一) 排序第1位的供应商出现以下情形的,将暂停其公开竞选资格6个月:中标、确定为合同供方/承包人后,无正当理由拒绝履行合同和有关承诺的,或擅自变更、中止(终止)合同的。
(二)供应商出现下列情形之一的,甲方有权暂停其公开竞选资格1年:
1、实际提供的有关产品性能指标或技术服务能力或施工质量明显低于报价响应时承诺的;
3、一年内供应商在采购项目中累计履约评价为不合格2次的;
3、供应商提供虚假材料或与其它供应商恶意串通谋取成交的;
4、发生其他违规或违约情况,造成严重损害的;
5、其它经采购人认定的。
附件8
供应商信用指标及评价标准
| 项目 | 子项 | 评价标准 |
| 良好行为 | 供应商按约定履行合同受到奖励的 | 每发生1次,自认定之日起一年内信用系数加2%, |
| 不良行为 | 供应商提供虚假材料或与其它供应商恶意串通谋取中标、成交的; | 严重不良行为,每发生1次,自认定之日起一年内信用系数扣5% |
| 中标、确定为合同供方/承包人后,无正当理由拒绝履行合同和有关承诺的,或擅自变更、中止(终止)合同的; | ||
| 实际提供的有关产品性能指标和技术服务能力、施工质量明显低于采购响应文件或竞选时的承诺的; | ||
| 中标、成交后,将合同转包给其他供应商的; | ||
| 中标、成交后,将合同擅自分包给其他供应商的; | 一般不良行为,每发生1次,自认定之日起一年内信用系数扣2% | |
| 开标后擅自撤回采购相应文件,影响采购活动继续进行的; | 轻微不良行为,每发生1次,自认定之日起一年内信用系数扣1.25% | |
| 供应商因未按约定履行合同受到违约处罚的。 |
备注:1、供应商信用系数每个评价年度周期的初评按0计算。
2、经采购人批准认定的同一供应商良好行为或不良行为,在评价年度周期内信用系数可累加计算。供应商在一个评价年度周期内未发生任何信用系数扣罚的,在下一个评价年度周期内初评信用系数的基础上奖励加3%,连续两个评价年度周期内未发生任何信用系数扣罚的,在下一个评价年度周期内初评信用系数的基础上奖励加5%,连续三个及以上评价年度周期内未发生任何信用系数扣罚的,在下一个评价年度周期内初评信用系数的基础上奖励加8%。
点击下载招标文件:
广州大学城(小谷围岛)建设项目区域供冷中山大学广州校区东校园化学与材料楼项目接入及配套工程设计采购竞选公告
广州大学城(小谷围岛)建设项目区域供冷中山大学广州校区东校园化学与材料楼项目接入及配套工程设计采购竞选文件