日期:2020-12-16
我司现就制备站和管沟监控中心周围修剪树木工程进行公开竞选,有关事项公告如下:
一、 项目名称及竞选内容
(一) 项目名称:制备站和管沟监控中心周围修剪树木工程
(二) 采购限价:人民币8万元。
(三) 项目内容
按采购人提供的竞选文件、工程量清单和图纸等资料,承包制备站和管沟监控中心周围修剪树木工程竞选过程中发布的竞选文件所包含的全部内容,具体以竞选文件及相关资料为准。
二、 合格投标人资格要求
(一) 必须是具有独立承担民事责任能力、在中华人民共和国境内注册的法人,按国家法律经营;
(二) 具备有效的工商营业执照、企业法人组织机构代码证书、税务登记证书(或三证合一);
(三) 已办理合法税务登记,具有开具相应增值税专用发票资格;
(四)不接受联合体报价。
三、 竞选文件公示
本项目的竞选公告及相关信息公示时间:2020年12 月16日至2021年 1月4日。同时在广东省招标投标监管网(网址:http://zbtb.gd.gov.cn/login)、广州大学城能源发展有限公司网站(网址:/)上发布,并视为有效送达。本公告的修改、补充,在广州大学城能源发展有限公司网站发布。本竞选公告及其修改、补充在各媒体发布的文本如有不同之处,以在广州大学城能源发展有限公司网站发布的文本为准。项目相关竞选文件等资料请自行在网站下载(如有)。
四、 获取竞选文件
获取竞选文件方式:在公示有效期内,工作日(北京时间,下同)上午9:00至12:00,下午14:00至17:00,可联系采购人获取该项目竞选文件或自行在网站下载(如有)。
五、 递交投标文件
(一)投标文件递交截止时间:2021年 1月 4日15时00分前。以密封的形式提供投标文件到:广州市番禺区大学城明志街1号信息枢纽楼9楼前台。投标文件信封或外包装上应当注明采购项目名称、投标人名称和“在(竞选文件中规定的开标日期)之前不得启封”的字样,封口处应加盖投标人印章。采购人接受现场递交或邮寄两种方式。采用邮寄方式的,应在邮寄外包装袋上注明“制备站和管沟监控中心周围修剪树木工程”字样。投标人递交投标文件后,请联系采购人确认。
(二)投标文件逾期递交、未送达指定地点的、或未按要求密封的,采购人有权不予受理。
六、 采购人联系方式:
(一)采购单位:广州大学城能源发展有限公司
(二)联系地址:广州市番禺区大学城明志街1号信息枢纽楼9楼,
联系人:廖先生,电话:020-30302079,电子邮件:[email protected]。
采购单位:广州大学城能源发展有限公司
2020年12月16 日
广州大学城能源发展有限公司
制备站和管沟监控中心周围修剪树木工程
竞选文件
一、 项目基本情况
(一) 项目名称:制备站和管沟监控中心周围修剪树木工程
(二) 项目地点:广州大学城管沟监控中心及制备站
(三) 采购限价:人民币8万元(投标报价超过采购限价为无效投标)。
(四) 项目概况
近期,发现在我司综合管沟监控中心和制备站周围的绿化树木日渐长大,其中部分树木的树身倾斜已经伸出路面,树身倾斜容易折断和倒塌,存在严重的安全隐患。一旦出现台风天气,将会发生重大的安全事故,可能危及我司综合管沟和制备站巡查人员的人身安全,急需对上述树木进行修剪。
注:本文件中甲方特指采购人,乙方特指中标单位。
二、 合格投标人资格要求
(一) 必须是具有独立承担民事责任能力、在中华人民共和国境内注册的法人,按国家法律经营。
(二) 具备有效的工商营业执照、企业法人组织机构代码证书、税务登记证书(或三证合一)。
(三) 已办理合法税务登记,具有开具相应增值税专用发票资格。
(四) 不接受联合体报价。
三、 项目内容及要求
(一) 施工内容
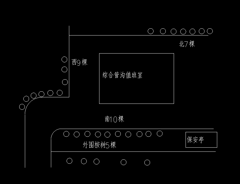
1. 制备站周围共有56棵树木的直径为30厘米—40 厘米,树高7米—8米。(见附图1)

2. 管沟监控中心周围共有26棵树木的直径为30厘米—40 厘米,树高6米—7米;外围有5棵树木的直径为30厘米—40 厘米,树高10米—12米,在开工前,施工单位必须到相应的管理部门自行办理所有相关手续。
附图2

(二) 施工要求
1. 由于修剪制备站树木在华电园区内进行,过程中可能出现树木进出华电园区的管理等问题,当发生以上问题情况时,由服务单位联系相关机构部门进行协调解决,不可引起任何的冲突。
2. 由于修剪管沟监控中心树木,有部分树木是在管沟监控中心外围,服务单位开工前需自行到相应的管理部门办理相关手续、占道申请及其他相关手续。
3. 每棵树木按要求进行修剪(见工程量说明),修剪后采取相关绿化措施确保树木的生长能力,保证绿化植物正常健康生长。
4. 修剪必须采用专业的起吊设备辅助进行,逐棵有序进行修剪,确保周边楼房和设备设施的安全。同时,修剪过程要求做好道路隔离或围蔽工作,并设专人指挥行人车辆通行工作。
5. 修剪下来的树木要求即时搬运离现场,并做好现场的清理清洁。
四、 工程量及材料说明
以下工程量仅作参考,本项目由投标人包工包料(注明甲供材料除外),投标人勘踏现场后,应根据下表及结合现场实际情况综合考虑再进行报价。
主要工程量清单
| 序号 | 名称 | 规格 | 单位 | 需求量 | 服务内容 | 部分照片 |
| 1 | 制备站南侧11棵和东侧11棵 | 杂树 | 棵 | 22 | 靠墙壁侧全部修剪枝条,高枝砍矮 | 见附图3-4 |
| 2 | 制备站北侧共12棵 | 杂树 | 棵 | 12 | 树木太高大,离墙壁太近,砍矮至主树杆的枝杈处或砍低于管线 | 见附图5-7 |
| 3 | 油罐区南侧16棵 | 杂树 | 棵 | 16 | 树木太高大,离管道太近,砍矮至主树杆的枝杈处或砍低至管道处 | 见附图8-9 |
| 4 | 油罐区东侧2棵和北侧4棵 | 杂树 | 棵 | 6 | 树木太高大,离管道太近,砍矮至主树杆的枝杈处或砍低至管道处 | 见附图10-11 |
| 5 | 监控中心西侧9棵和南侧10棵 | 杂树 | 棵 | 19 | 树木太茂密,全部修剪枝条,高枝砍矮 | 见附图12-13 |
| 6 | 监控中心北6棵 | 杂树 | 棵 | 6 | 树木太茂密,全部修剪枝条,高枝砍矮 | 见附图14 |
| 7 | 监控中心北1棵 | 杂树 | 棵 | 1 | 树木已经倾斜到广美里面,需要砍伐 | 见附图15 |
| 7 | 监控中心外围5棵 | 桉树 | 棵 | 5 | 树木太高大,倾斜严重,砍矮至主树杆的枝杈处 | 见附图16 |
备注:
1) 工程量清单报价时建议按上述表格人工、材料分开单列报价。
五、 项目工期、验收标准及质保期限
(一) 施工工期
本项目总工期为20天(含节假日,连续计算),具体开工日期以甲方通知为准。
(二) 质量安全要求
1. 每棵树木按要求进行修剪(见工程量说明),修剪后采取相关绿化措施确保树木的生长能力,保证绿化植物正常健康生长;
2. 修剪下来的树木要求即时搬运离现场,并做好现场的清理清洁;
3. 搬运设备必须有足够的人力和可靠的搬运工具,索具捆扎紧固;
4. 临时用电设备应配备相应的电缆、配套带漏电开关的电源控制箱,服务单位的临时用电设备要求做到“一机一闸一保护”;
5. 高处作业前,服务单位要制订安全措施,并填入《高处作业票》内。在高空作业时,作业人员必须戴安全帽系好安全带,将安全带挂在上方牢固可靠处,高度不低于腰部;必须穿平底鞋,严禁穿硬底、带钉和易滑的鞋。
(三) 验收的方式
服务单位在修剪完毕后需进行自查自改,对存在的问题及不安全因素进行整改到位,后方可填写《报验单》,有甲方管理单位对服务质量及工作量进行审核无误后,填写《验收表》,并由相关部门签字确认完成服务验收工作。
六、 工程费用及支付方式
(一) 本工程采用综合单价包干,包工、包料、包工期、包质量、包安全、包安全文明施工、包验收、包调试、包结算、包资料整理、包综合治理、包风险、包利润和管理费等完成本项目的全部费用。
(二) 本项目的投标总价应包含投标人按施工现场现状及施工范围根据采购人要求完成项目约定全部工作所需的税费及相关措施费及合同实施过程中应预见和不可预见的费用等等。工程量清单和竞选范围内的报价如有漏计或漏项的,视为投标人单方面作出的让利,费用不另行增加。
(三) 付款方式
1. 在本合同履行期内,若国家税费调整,合同含税金额按国家规定税率作出相应调整,供方每次申请付款应按照合同内容开具相应税率的合法有效的增值税专用发票。
2. 合同签订并进场工作后,甲方收到乙方请款资料后7个工作日内支付合同暂定总价的30%预付款;工程全部完工验收合格和完成结算手续后,甲方收到乙方请款资料后15个工作日内支付至合同结算总价的100%(含预付款)。付款前,乙方应开具符合国家税务规定的等额合格的增值税专用发票给甲方。乙方晚于付款期限提供的,甲方付款期限相应顺延。
七、 投标文件
根据采购人要求的投标文件格式,进行密封报价(盖章)。投标文件应包含以下内容:
(一) 商务部分(提供复印件,并加盖公章)
1. 有效的企业工商营业执照、企业法人组织机构代码证书、税务登记证书(或三证合一);
2. 供应商调查表(格式见附件2)
3. 法定代表人证明书、法定代表人授权委托书原件(格式见附件3和附件4);
4. 本工程拟派项目负责人简历表(包括姓名、部门和职务、所学专业和毕业院校名称及毕业时间、主要资历、经验及承担过的类似项目,获得认证资质证书及复印件);
5. 投标人认为有必要的其他材料复印件。
(二) 技术部分(格式自定,加盖公章)
施工方案:施工单位应充分了解现场条件,并针对本项目制定切实可行的施工方案,包括但不限于:
1. 总体实施方案;
2. 实施进度计划和工期承诺书;
3. 确保实施进度的技术和组织措施;
4. 确保安全文明施工的技术和组织措施;
5. 投入的机械设备;
6. 投标人认为其它需要说明的文字。
(三) 价格文件(加盖公章)
1. 报价一览表(格式见附件1)
2. 报价明细表:采用工程量清单计价,按本竞选文件所附工程量清单和乙供主要材料清单报价,并以此作为结算依据,包括但不限于工程量清单和乙供主要材料清单各项目单价及综合总报价,并注明未含税总价、税率和含税总价。
八、 评标方法
本项目采用经评审的最低评标价法确定中标候选人。同时通过投标人资格审查(见附件5)和投标文件有效性审查(见附件6)后,各投标人按有效投标报价由低至高的顺序依次排列,排名第一为第一中标候选人。投标人实行信用评价管理,具体见附件7和附件8。
九、 勘踏现场
投标人有必要勘踏现场,充分了解清楚施工现场的环境和要求,以便投标人获取那些须投标人自己负责的有关编制投标文件和签署合同所涉及现场所有的资料。一旦中标,这种考察即被认为其结果已在中标文件中得到充分反映。考察现场的费用由投标人自己承担,如因对现场不了解导致报价的失误,由投标人承担。勘踏现场时间:2020年12月 23日10时00分,集中地点:广州市番禺区大学城明志街1号信息枢纽楼一楼西门。勘踏现场联系人生产部张工,联系电话:020-39302028。投标人未在规定时间勘踏现场的,采购人不再另行组织,由投标人自行前往勘踏。
十、 递交投标文件
(一) 投标文件递交截止时间:2021年 1月4日北京时间15时00分前。以密封的形式提供投标文件到:广州市番禺区大学城明志街1号信息枢纽楼前台。投标文件信封或外包装上应当注明采购项目名称、投标人名称和“在(竞选文件中规定的开标日期)之前不得启封”的字样,封口处应加盖投标人印章。采购人接受现场递交或邮寄两种方式。采用邮寄方式的,应在邮寄外包装袋上注明“制备站和管沟监控中心周围修剪树木工程”字样。投标人递交投标文件后,请联系采购人确认。
(二) 投标文件逾期递交、未送达指定地点的、或未按要求密封的,采购人有权不予受理。
十一、 公开发布
本竞选文件在广东省招标投标监管网(网址:http://zbtb.gd.gov.cn/login)、广州大学城能源发展有限公司网站(网址:/)同时发布。本竞选文件在各媒体发布的文本如有不同之处,以在广州大学城能源发展有限公司网站发布的文本为准。
十二、 采购人地址和联系方式
采购单位:广州大学城能源发展有限公司
联系地址:广州市番禺区大学城明志街1号信息枢纽楼9楼
联系人:廖先生
联系电话:020-39302079
附件1:报价一览表
附件2:供应商调查表
附件3:法定代表人身份证明书
附件4:法定代表人授权委托证明书
附件5:投标人资格审查表
附件6:投标文件有效性审查表
附件7:公开竞选供应商信用评价
附件8:供应商信用指标及评价标准
采购人:广州大学城能源发展有限公司 2020年12月16日